ОСТАВАТ
00часа
00мин.
00сек.
до големите отстъпки на
Ден за разпродажби

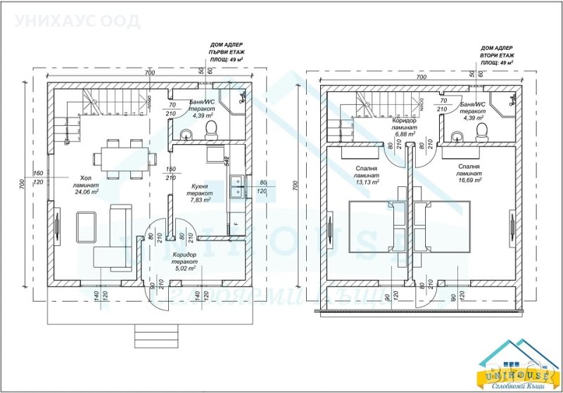
Двуетажна Къща Дом Адлер 98 м2 → Обява 40437389

Двуетажна Къща Дом Адлер 98 м2, снимка 1 - Монтажи - 40437389 Двуетажна Къща Дом Адлер 98 м2, снимка 2 - Монтажи - 40437389 Двуетажна Къща Дом Адлер 98 м2, снимка 3 - Монтажи - 40437389 1/3
Двуетажна Къща Дом Адлер 98 м2
гр. София, Красно село Наблюдавай

Публикувана/обновена на 18 февруари в 07:42 ч.

Това е малка двуетажна къща в класически стил, която може да се използва както за сезонен, така и за целогодишен живот от семейство с деца. С обща площ от 98 кв. м. Дом Адлер разполага с входно антре, през което има достъп към хола и кухнята. Помещенията са разпределени на хол с трапезария и отделена кухня. Има две санитарни помещения на двата етажа. Къщата разполага с две спални на втория етаж. Има възможност за тераса и веранда, които не са включени в общата квадратура. Компактните размери на къщата дават възможност да се построи дори върху по-малък парцел.
Работи се в цяла България.
Разполагаме и с отлични дизайнери, които с готовност биха съдействали за реализирането дори и на най-нестандартните желания.
гр. София, ж-к "Красно село"
бул. "Цар Борис III" № 125, в локалното
Преглеждания: 2 279
Оценка 4.6 от 102 гласа.
Другите търсят също
Препоръчани за теб
Популярни търсения: мини багер
Цена:
Договаряне Договаряне