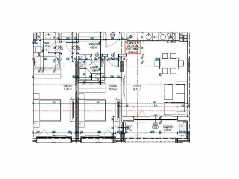
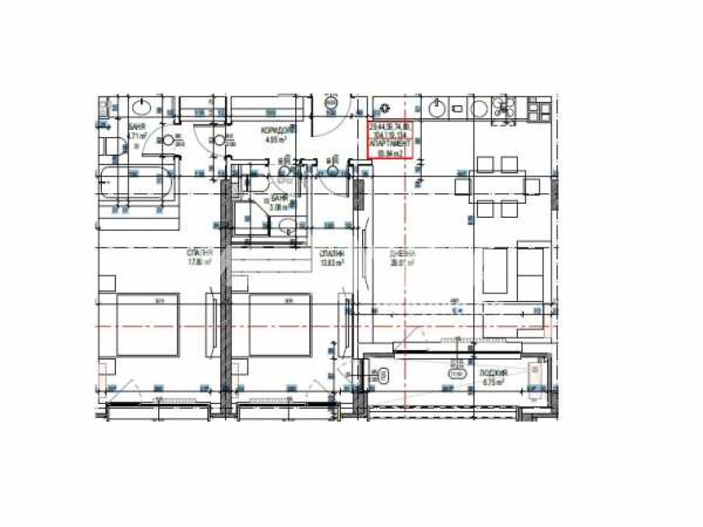
ИМОТЕКА
В Bazar.BG от 30 март 2015г.
Последно активен
вчера в 21:33 ч.
Още оферти на https://imoteka.imot.bg




