ОСТАВАТ
00часа
00мин.
00сек.
до големите отстъпки на
Ден за разпродажби

Продава 3-СТАЕН, гр. Варна, Аспарухово → Обява 47112380

Продава 3-СТАЕН, гр. Варна, Аспарухово, снимка 1 - Апартаменти - 47112380 1/1
Продава 3-СТАЕН, гр. Варна, Аспарухово
гр. Варна, Аспарухово Наблюдавай

Публикувана/обновена на 22 януари в 12:01 ч.


Тип апартамент
3-стаен
Квадратура
108 кв. м.
Цена на кв.м.
1514 €/кв. м.
Вид строителство
Тухла
Eтаж
7
Година
2025
Ние- 'Екипът Градев'' имаме удоволствието да Ви предложим-

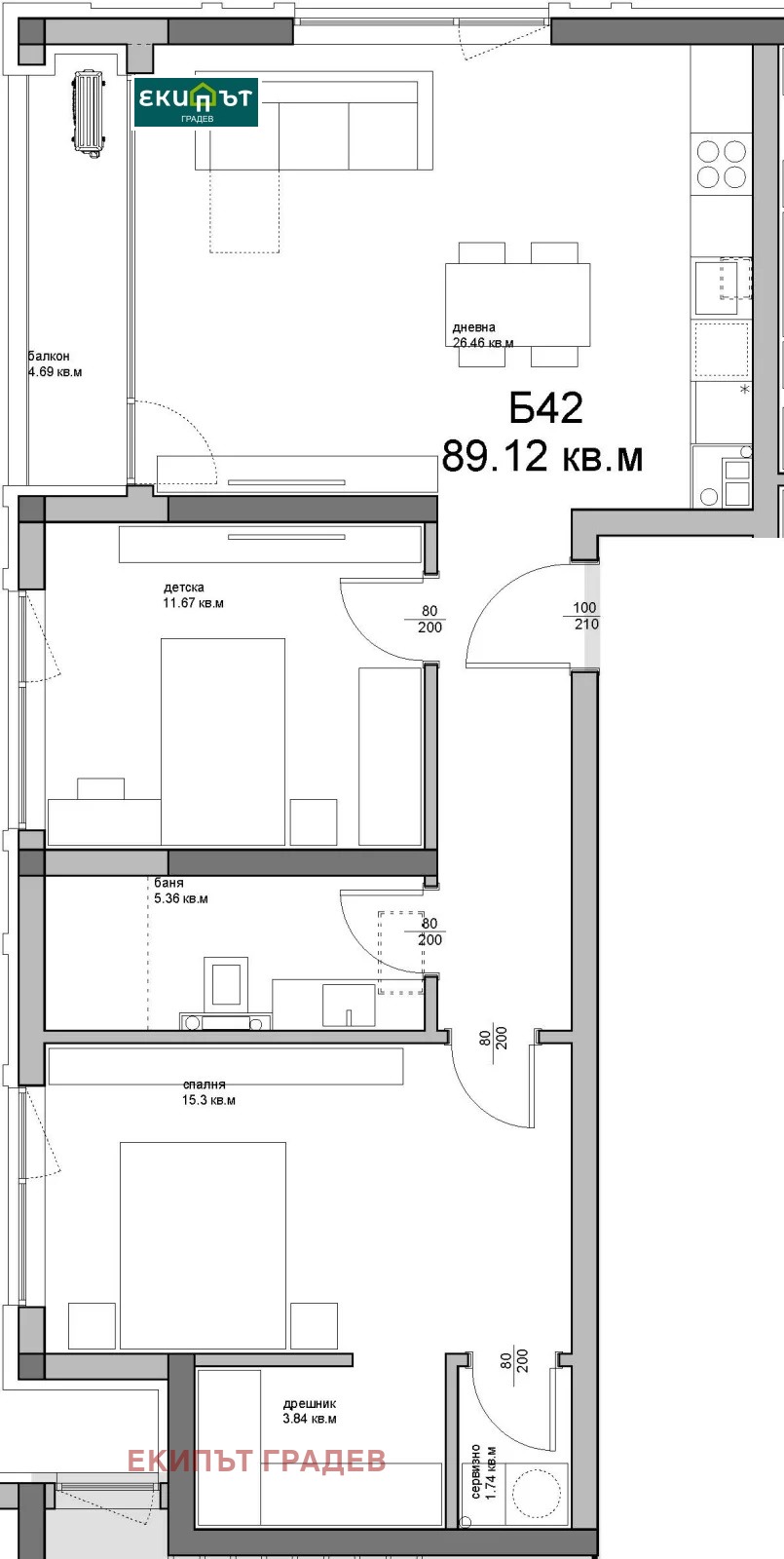
Тристаен апартамент в съвременен архитектурен проект, ситуиран в кв. Аспарухово в комплекс от затворен тип.

Разпределението на жилището включва просторен дневен тракт с кухня с площ от 26,46м2, детска 11,67м2, втора спалня 15,3м2 с дрешник 3.84 и сервизно 1,57м2, баня с тоалет 5,36м2, балкон 4,69м2.

Жилището се намира на седми етаж от общо седем етажа с обща площ 108,12м2. Имотът е без преход и с правилна форма на стаите!

Отлична локация за кв. Аспарухово! Добре уреден район за живеене, съчетан с комфорт, удобство и зелени пространства. Близост до главни пътни артерии, осигуряващи бърз достъп до центъра на града. На метри от детска градина, училище, хипермаркети, автобусни спирки, Парк Аспарухово, Плаж Аспарухово и други.



Строителство: Висококачествено Ново Строителство

Сграда: Луксозно завършени общи части, безшумен електрически асансьор. Домофона система за контролиран достъп в сградата. На територията на комплекса има минерален извор. Водата е изследвана, сертифицирана и е подходяща за пиене и битови нужди.

Възможност за закупуване на паркомясто в подземен паркинг

Отлична схема на плащане:

30 % при сключване на предварителен договор;

30% при снабдяване сградата с образец АКТ 14 ;

35% при снабдяване сградата с образец АКТ 15 ;

5% при снабдяване сградата с АКТ 16 (Разрешително за Въвеждане в Експлоатация).

Срок на завършване на сградата 2025 г.

Предлагаме също двустайни, както и други тристайни жилища в комплекса.

За повече инфо и въпроси- Мина Боева 0886418888
Преглеждания: 355
Другите търсят също
Препоръчани за теб
Цена:
163 500 € 319 778,21 лв
Не се начислява ДДС