ОСТАВАТ
00часа
00мин.
00сек.
до големите отстъпки на
Ден за разпродажби

Продава 4-СТАЕН, гр. София, Кръстова вада → Обява 47866949

Продава 4-СТАЕН, гр. София, Кръстова вада, снимка 1 - Апартаменти - 47866949 1/1
Продава 4-СТАЕН, гр. София, Кръстова вада
гр. София, Кръстова вада Наблюдавай

Публикувана/обновена на 18 август 2025г. в 10:33 ч.


Тип апартамент
4-стаен
Квадратура
264 кв. м.
Цена на кв.м.
1486 €/кв. м.
Вид строителство
Тухла
Eтаж
1
Година
2026
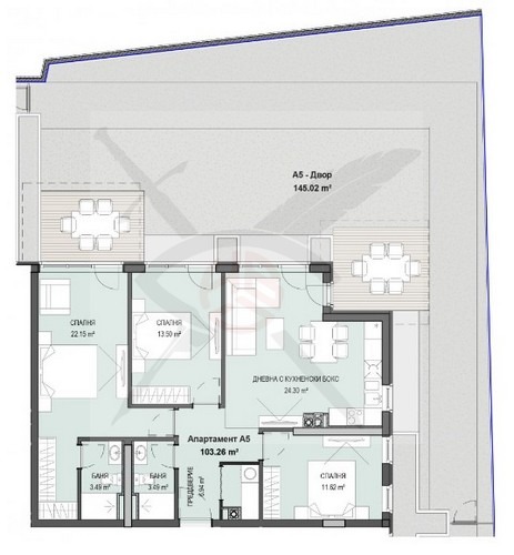
Компания `ЕКС` представя на Вашето внимание четиристаен апартамент в един от най-предпочитаните райони на София- ж.к. Кръстова вада.

МЕСТОПОЛОЖЕНИЕ: В близост до Южен парк, МОЛ Парадайз, спирка на градски транспорт, магазини от всякакъв тип.

СТРОИТЕЛСТВО: Апартаментът е ситуиран на 1-ви етаж в сграда ново строителство.

РАЗПРЕДЕЛЕНИЕ: Имотът разполага с площ от 264 кв.м., разпределена във входно антре, дневна с трапезария и кухненски бокс, три спални, две бани с тоалетни, мокро помещение и покривна тераса.

ОСОБЕНОСТИ: Възможност за закупуване на паркомясто или гараж в сградата.

Заповядайте да Ви го покажем. Използвайки нашите услуги, Вие ще превърнете закупуването на новия си дом в едно приятно изживяване, ще получите персонален консултант, съдействие при кандидатстване за кредит от всички банки в България, интериорни дизайнери и екип, който да се погрижи за нужните документи по Вашата сделка. На Ваше разположение сме всеки ден, от понеделник до неделя от 09:00 до 20:00ч. Възползвайте се от безплатна консултация в наш офис, където ще Ви спестим време и ще Ви запознаем с всички актуални имоти в България, отговарящи на Вашето търсене. Свържете се с нас на 0887 77 99 90 или на 0886 12 12 57 и цитирайте кода към имота: 908-26683.
Преглеждания: 652
Другите търсят също
Препоръчани за теб
Цена:
392 327,01 € 767 324,94 лв
Цената е без ДДС