ОСТАВАТ
00часа
00мин.
00сек.
до големите отстъпки на
Ден за разпродажби

Продава 2-СТАЕН, гр. Приморско, област Бургас → Обява 49368082

Продава 2-СТАЕН, гр. Приморско, област Бургас, снимка 1 - Апартаменти - 49368082 1/1
Продава 2-СТАЕН, гр. Приморско, област Бургас
гр. Приморско, Бургас Наблюдавай

Публикувана/обновена на 08 януари в 10:47 ч.


Тип апартамент
2-стаен
Квадратура
55 кв. м.
Цена на кв.м.
1050 €/кв. м.
Вид строителство
Тухла
Eтаж
1
Година
2025
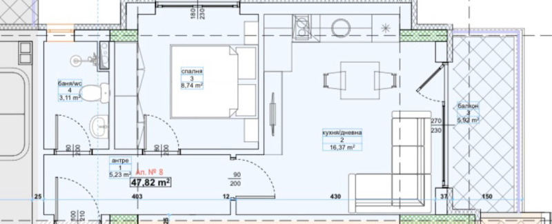
Представяме Ви още един от новите ни проекти на жилищна сграда, North Beach View в град Приморско. Супер локация - само на 1 минута от северния плаж в спокойната и тиха част на гр. Приморско. Възможност за закупуване на паркомясто в подземен паркинг на цена от 20 000 с площ от 27 до 33кв.м и надземни гаражи на цена 1000 Предлага се и разсрочено плащане . Строежа ще стартира на 01.04.2023г. Пусков срок 24месеца. Цени от 950 /кв.м ДИРЕКТНО ОТ СТРОИТЕЛЯ. Сградата ще разполага със студиа от 34кв.м. Двустайни апартаменти започващи от 52 кв.м. и тристайни с площ от 75кв.м адрес: ул. Лагуна 20, гр. Приморско.
Преглеждания: 98
Другите търсят също
Препоръчани за теб
Цена:
57 750 € 112 949,18 лв
Не се начислява ДДС