ОСТАВАТ
00часа
00мин.
00сек.
до големите отстъпки на
Ден за разпродажби

Продава 3-СТАЕН, гр. Варна, Цветен квартал → Обява 49491293

Продава 3-СТАЕН, гр. Варна, Цветен квартал, снимка 1 - Апартаменти - 49491293 Продава 3-СТАЕН, гр. Варна, Цветен квартал, снимка 2 - Апартаменти - 49491293 Продава 3-СТАЕН, гр. Варна, Цветен квартал, снимка 3 - Апартаменти - 49491293 1/3
Продава 3-СТАЕН, гр. Варна, Цветен квартал
гр. Варна, Цветен квартал Наблюдавай

Публикувана/обновена на 20 май в 08:57 ч.


Тип апартамент
3-стаен
Квадратура
99 кв. м.
Цена на кв.м.
1818 €/кв. м.
Вид строителство
Тухла
Eтаж
2
Година
2027
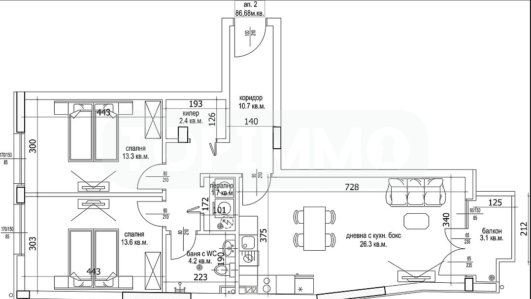
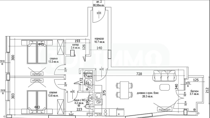
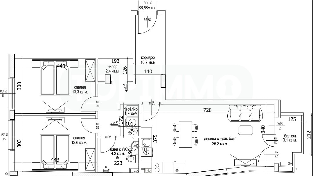
ТОПИММО предлага за продажба тристаен апартамент в новострояща се сграда в района на Цветния квартал.

Апартаментът е разположен на 2-ри етаж в осеметажна сграда, на площ от 99,03 кв.м. са разпределени коридор, дневна с кухненска част, 2 спални, баня с тоалетна, килер и балкон. Издава се в степен на завършеност по БДС.

Възможност за покупка на открити и закрити паркоместа на цени от 20 000 до 26 000 Евро

Схеми на плащане:
Вариант 1:
30% при подписване на Предварителен договор
20% при готова покривна плоча на четвърти етаж
30% при подписан акт обр.14
20% при подписан акт обр.15

Вариант 2:
40% при подписване на Предварителен договор
60% с кредит при подписан акт обр.14
/цени от вариант 1/

СТЕПЕН ЗА ЗАВЪРШЕНОСТ НА ОБЕКТА:
Общи части на сградата
подови настилки и стъпала от гранитогрес или гранит
стени - декоративна мазилка
асансьор - ORONA
Жилище
вътрешни стени - тухла с гипсова мазилка;
тавани гипсокартон
под на стаи - циментова замазка;
баня - тоалет: под циментова замазка, стени вароциментова мазилка;
ел. инсталация: завършена напълно до ключове, контакти, оптичен кабел до апартамент;
В и К инсталации: завършени до тапа;
изграждане на тръбни връзки за монтаж на климатици, на определени по архитектура места.
външна врата блиндирана с облечена декоративна каса;
прозорци: висококачествена PVC дограма - 7 камерна с тройни стъклопакети, 6 мм четири сезона/ 4 мм бяло флоатно стъкло/ 4 мм К;
паркинг - шлайфан бетон на под;
фасада - комбинация от мазилка с камък, HPL и керамика;
покрив - хидро и топлоизолация.

В сградата са налични и други тристайни и двустайни апартаменти, за повече информация, свържете се с нас! Референтен номер: AP-3961
Преглеждания: 369
Другите търсят също
Препоръчани за теб
Цена:
180 000 € 352 049,40 лв
Цената е с включен ДДС