Продава 3-СТАЕН, гр. Пловдив, Въстанически → Обява 49955309

Продава 3-СТАЕН, гр. Пловдив, Въстанически, снимка 1 - Апартаменти - 49955309 Продава 3-СТАЕН, гр. Пловдив, Въстанически, снимка 2 - Апартаменти - 49955309 Продава 3-СТАЕН, гр. Пловдив, Въстанически, снимка 3 - Апартаменти - 49955309 Продава 3-СТАЕН, гр. Пловдив, Въстанически, снимка 4 - Апартаменти - 49955309 1/4
Продава 3-СТАЕН, гр. Пловдив, Въстанически
гр. Пловдив, Въстанически Наблюдавай

Публикувана/обновена днес в 01:24 ч.


Тип апартамент
3-стаен
Квадратура
101 кв. м.
Цена на кв.м.
901 €/кв. м.
Вид строителство
Тухла
Eтаж
8
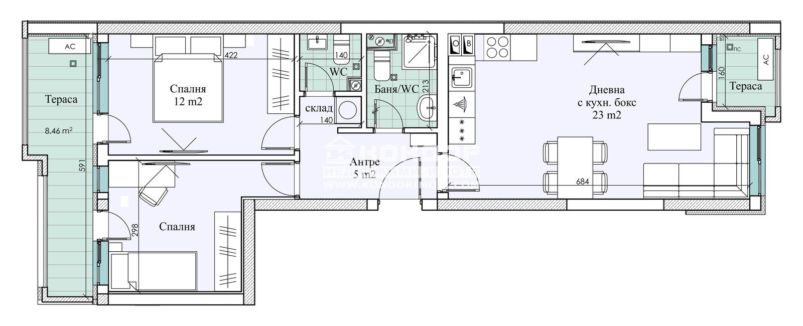
Оферта 57863: Класически стил, качествена среда за живеене и великолепна гледка към Родопите - предоставени в нова сграда цялостната концепция на която е свързана с осигуряване на спокойствие и естетика на живущите. Обектът разполага с едностайни, двустайни и тристайни жилища. Богато озеленен парк е мястото, където всеки един от живущите може да отдъхнете след забързаното ежедневие. Апартаментите са с добре премислени правилни форми на помещенията, което улеснява обзавеждането. Жилището се състои от дневна 23 кв.м с трапезария и кухненски бокс, две самостоятелни спални, баня с тоалетна, второ wc с мивка, склад, антре и две тераси. Сградата е завършена с висококачествени материали и съвременни технологии, които защитават вашия дом от външните влияния. За това се залага на 10см. външна топлоизолация на австрийската фирма BAUMIT, тухли WIENERBERGER създадени от 100% естествени материали ,които действат като естествен регулатор на микроклимата. За по-оптимални резултати се залага на на дограма Rehau-EuroDesign 70 с механизъм с двойно отваряне. Общите части са изпълнени с мрамор и гранитогрес, а асансьорът е италиански електромеханичен с вносен камък, дървесина и лед панели. Входните врати на апартамента са масивни, блиндирани на Диадорс, ел. инсталацията е изпълнена с материали на ТМТ-Елдом с контакти на Шнайдер, три вида окабеляване за интернет и ТВ- оптичен до всеки апартамент. Изберете достоен лукс и така мечтаната хармония и сигурност. Сградата разполага с партерни и подземни Гаражи и Паркоместа.

ВИЖТЕ ОЩЕ ИЗГОДНИ ОФЕРТИ НА https://www.kondorimoti.com/ С ЕЖЕДНЕВНА АКТУАЛИЗАЦИЯ!
Преглеждания: 244
Другите търсят също
Препоръчани за теб
Популярни търсения: мивка за баня
Цена:
91 040 € 178 058,76 лв
Цената е с включен ДДС