ОСТАВАТ
00часа
00мин.
00сек.
До края на
Ден за разпродажби

Продава 3-СТАЕН, гр. София, Зона Б-18 → Обява 50601620

Продава 3-СТАЕН, гр. София, Зона Б-18, снимка 1 - Апартаменти - 50601620 1/1
Продава 3-СТАЕН, гр. София, Зона Б-18
гр. София, Зона Б-18 Наблюдавай

Публикувана/обновена на 16 юли 2025г. в 10:47 ч.


Тип апартамент
3-стаен
Квадратура
155 кв. м.
Цена на кв.м.
2647 €/кв. м.
Вид строителство
Тухла
Eтаж
9
Година
2028
ОТЛИЧНА ЛОКАЦИЯ !!! СТАРТИРАЛО СТРОИТЕЛСТВО !!! ЛУКСОЗНА СГРАДА !!!

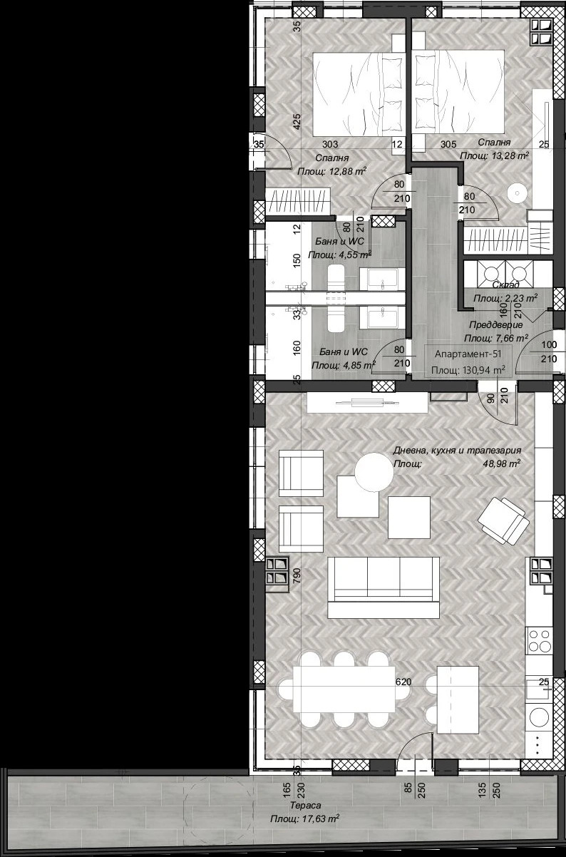
Представяме на Вашето внимание тристаен апартамент в нова жилищна сграда без аналог на пазара в центъра на столицата. Апартаментът ще разполага със следното функционално разпределение:
входно антре, хол + кухненски бокс 49кв.м., две спални, две бани + тоалетни, тераса
Фасадата на сградата е съвременна и модерна с елегантни декоративни елементи, които подчертават обемите. Конструкцията е монолитна стоманобетонна с външни зидове от 25 см. тухли и 10 см. топлоизолация. Терасите са предвидени с ажурни и плътни парапети с височина от мин. 120 см. от готов под. А създаването на общо пространство в градската среда е предизвикателство за осигуряването му по функционален път, което допълва уютната обстановка и качеството на живот. Предвидена е богато озеленена, общодостъпна покривна тераса.
За повече информация, обадете си и цитирайте код: 128770
Преглеждания: 389
Другите търсят също
Препоръчани за теб
Цена:
410 284 € 802 445,76 лв
Цената е с включен ДДС