ОСТАВАТ
00часа
00мин.
00сек.
до големите отстъпки на
Ден за разпродажби

Продава ПАРЦЕЛ, гр. Варна, м-т Боровец - юг → Обява 50972147

Продава ПАРЦЕЛ, гр. Варна, м-т Боровец - юг, снимка 1 - Парцели - 50972147 Продава ПАРЦЕЛ, гр. Варна, м-т Боровец - юг, снимка 2 - Парцели - 50972147 1/2
Продава ПАРЦЕЛ, гр. Варна, м-т Боровец - юг
гр. Варна, м-т Боровец - юг Наблюдавай

Публикувана/обновена на 20 февруари в 12:25 ч.


Квадратура
3125 кв. м.
Цена на кв.м.
150 € кв. м.
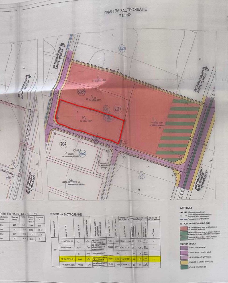
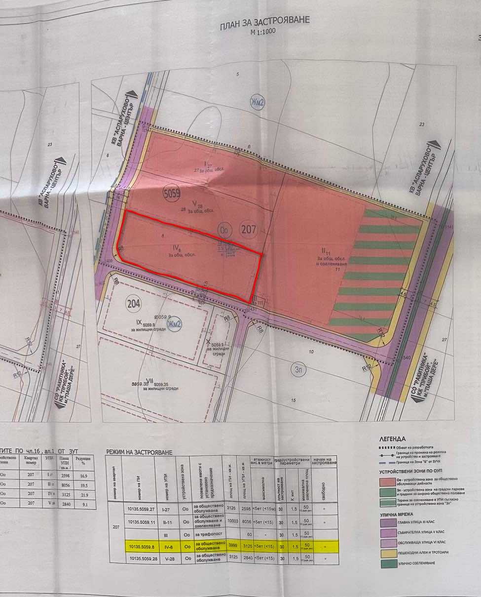
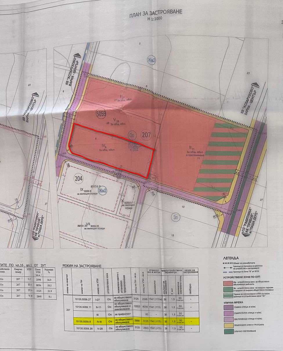
ID 7485 - Одобрен ПУП-ПРЗ!
Предлагаме на Вашето внимание панорамен парцел в местност Боровец-юг, местност 'Чигана', в началото на местността, на 30 метра от първите къщи на Боровец Юг . Разстоянието до главният асфалтов път е около 350 метра. Достъпа е добър. Парцела е с ориентировъчни размери- 32/97 метра. Равен. Трасиран. Панорама към града и морето. ПУП с параметри на застрояване- ПЗ-30%, Кинт-1,5 КК-15м., с предназначение - за обществено обслужване. Възможна стъпка на сградата - 937кв.м. и РЗП-4687кв.м. В процес на промяна на предназначение!

Има възможност за разширяване на територията с покупка на съседния имот с площ от 2840м2. За него също има изготвен, одобрен и влязъл в сила ПУП-ПРЗ със същите показатели и предназначение. Парцела е с променено предназначение, партида за ток!
Преглеждания: 208
Другите търсят също
Препоръчани за теб
Цена:
468 750 € 916 795,31 лв
Не се начислява ДДС