ОСТАВАТ
00часа
00мин.
00сек.
до големите отстъпки на
Ден за разпродажби

Продава 3-СТАЕН, гр. София, Люлин 10 → Обява 51408058

Продава 3-СТАЕН, гр. София, Люлин 10, снимка 1 - Апартаменти - 51408058 1/1
Продава 3-СТАЕН, гр. София, Люлин 10
гр. София, Люлин 10 Наблюдавай

Публикувана/обновена на 06 януари в 12:34 ч.


Тип апартамент
3-стаен
Квадратура
112 кв. м.
Цена на кв.м.
1750 €/кв. м.
Вид строителство
Тухла
Eтаж
3
Година
2027
454579 БЕЗ КОМИСИНА ОТ КУПУВАЧА! ПРЕДСТОЯЩ СТАРТ НА СТРОИТЕЛСТВОТО през септември!

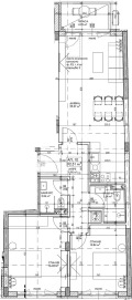
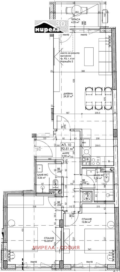
Представяме ви 3-стаен апартамент в новоизграждаща се сграда в кв. Люлин 10, състоящ се от антре, дневна с кухненски бокс, две спални, две бани с тоалетна и тераса.

В цената на имота е вкл. склад с площ от 2,51 кв.м.

ЕТАП НА СТРОИТЕЛСТВО: разрешение за строеж; ОТОПЛЕНИЕ: климатик; Има 1 балкон/тераса; Предава се на шпакловка и замазка; Непреходен; ВИД СТРОИТЕЛСТВО: стоманобетонна конструкция; ЗАСТРОЕНА ПЛОЩ 92.51 кв.м; ПУСКОВ СРОК: 05.2027; ИЗЛОЖЕНИЕ: изток, север, юг; СПАЛНИ: 2; БАНИ: 2; ДОГРАМА: Пет камерна PVC

_________________________________________________________________________________________________

Към потенциалните продавачи!
Ако продавате подобен имот или обмисляте дали да го направите в близко бъдеще, моля свържете се с мен. Имам клиенти, които търсят в района. Мога да дам ориентировъчна цена по телефон или имейл и по-точна цена при оглед на място.

ОГЛЕДЪТ И КОНСУЛТАЦИЯТА СА БЕЗПЛАТНИ.

МОЖЕТЕ СЪЩО ТАКА, ДА ПОДАДЕТЕ И БЕЗПЛАТНА ЧАСТНА ОБЯВА ЗА ПРОДАЖБА НА ВАШИЯ ИМОТ В MIRELA.BG, БЕЗ БРОКЕР И КОМИСИОНА.
Преглеждания: 242
Другите търсят също
Препоръчани за теб
Цена:
196 000 € 383 342,68 лв
Цената е с включен ДДС