ОСТАВАТ
00часа
00мин.
00сек.
до големите отстъпки на
Ден за разпродажби

Продава 2-СТАЕН, гр. София, Люлин 5 → Обява 51616344

Продава 2-СТАЕН, гр. София, Люлин 5, снимка 1 - Апартаменти - 51616344 Продава 2-СТАЕН, гр. София, Люлин 5, снимка 2 - Апартаменти - 51616344 Продава 2-СТАЕН, гр. София, Люлин 5, снимка 3 - Апартаменти - 51616344 Продава 2-СТАЕН, гр. София, Люлин 5, снимка 4 - Апартаменти - 51616344 Продава 2-СТАЕН, гр. София, Люлин 5, снимка 5 - Апартаменти - 51616344 1/5
Продава 2-СТАЕН, гр. София, Люлин 5
гр. София, Люлин 5 Наблюдавай

Публикувана/обновена на 05 септември 2025г. в 14:39 ч.


Тип апартамент
2-стаен
Квадратура
71 кв. м.
Цена на кв.м.
1465 €/кв. м.
Вид строителство
Тухла
Eтаж
9
Година
2026
Unique Estates има удоволствието да Ви представи тристаен апартамент за продажба в затворен комплекс от най-висок клас с контрол на достъпа, 24ч. видеонаблюдение и жива охрана. Комплексът ще разполага със собствен просторен озеленен парк с детска площадка, игрище за мини футбол, алеи за разходка и отдих и барбекю зона за живущите. За собствениците са предвидени зарядни станции за електрически автомобили.

Проектът се състои от 2 жилищни сгради и се изгражда с най-висок клас материали. За повече светлина и уют в жилищата са предвидени френски прозорци с дограма DECEUNINCK Elegance 7 с троен стъклопакет 4-ри сезона. Фасадата е на BAUMIT Creative TOP с 100 мм фасадна изолация, а за по-добра енергийна ефективност сме заложили на тухлена зидария с WIENERBERGER.

Жилищата ще се издават с блиндирани входни врати с дизайнерски каси, видеодомофонни инсталации, монтирани ключове и контакти, а при желание от Ваша страна, те ще бъдат завършени 'до ключ'.

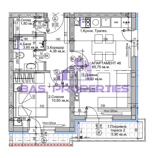
Разпределение:
Просторна дневна с кухня, две спални, баня, балкон

Предимства:
Затворен комплекс на комуникативно място
Локация с бърз достъп до центъра и спирки на градски транспорт
Денонощна жива охрана, система за видеонаблюдение
Луксозни общи части
Паркомясто на отделна цена

Цената е без включен ДДС. Ref. ID:27127
Преглеждания: 454
Другите търсят също
Препоръчани за теб
Цена:
104 000 € 203 406,32 лв
Цената е без ДДС