ОСТАВАТ
00часа
00мин.
00сек.
до големите отстъпки на
Ден за разпродажби

Продава 3-СТАЕН, гр. Варна, Левски 2 → Обява 51681592

Продава 3-СТАЕН, гр. Варна, Левски 2, снимка 1 - Апартаменти - 51681592 Продава 3-СТАЕН, гр. Варна, Левски 2, снимка 2 - Апартаменти - 51681592 Продава 3-СТАЕН, гр. Варна, Левски 2, снимка 3 - Апартаменти - 51681592 1/3
Продава 3-СТАЕН, гр. Варна, Левски 2
гр. Варна, Левски 2 Наблюдавай

Публикувана/обновена на 06 март в 15:23 ч.


Тип апартамент
3-стаен
Квадратура
88 кв. м.
Цена на кв.м.
2188 €/кв. м.
Вид строителство
Тухла
Eтаж
5
Година
2027
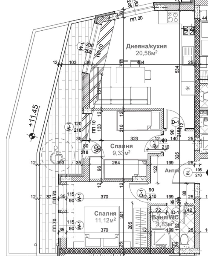
455443 Агенция Мирела продава просторен тристаен апартамент в новострояща се сграда в квартал Левски, разположена от долната страна на бул. Христо Смирненски, в близост до Военномедицинска академия Варна.

Апартаментът се намира на пети етаж и има следното разпределение:

Дневен тракт с кухненски кът, зона за хранене и почивка- 25.70 кв. м.
Родителска спалня 12.6 кв. м.
Детска спалня 12.3 кв. м.
Обща тераса на двете стаи 4.0 кв. м.
Баня и тоалетна в едно помещение 4.80 кв. м.
Килер 2.2 кв. м.
Коридор 8.20 кв. м. с гардеробна ниша.
Цена при схема 30/30/30/10 % - 195 000 .

На разположение на живущите има подземни и надземни паркоместа, които могат да се закупят отделно.
Планирано завършване на сградата:
Акт 14 април 2026 г.
Акт 15 октомври 2027 г.
Въвеждане на сградата в експлоатация декември 2027 г.
В сградата предлагаме и други двустайни, тристайни и четиристайни апартаменти.
За повече информация, не се колебайте да ме потърсите на посоченият телефон.

ЕТАП НА СТРОИТЕЛСТВО: кота 1-ви етаж; ОТОПЛЕНИЕ: климатик; Има 1 балкон/тераса; Предава се на шпакловка и замазка; Непреходен; ВИД СТРОИТЕЛСТВО: тухла; ЗАСТРОЕНА ПЛОЩ 79 кв.м; ПУСКОВ СРОК: 12.2027; ИЗЛОЖЕНИЕ: запад, юг, панорамна гледка; СПАЛНИ: 2; БАНИ: 1; ДОГРАМА: Пет камерна PVC

_________________________________________________________________________________________________

Към потенциалните продавачи!
Ако продавате подобен имот или обмисляте дали да го направите в близко бъдеще, моля свържете се с мен. Имам клиенти, които търсят в района. Мога да дам ориентировъчна цена по телефон или имейл и по-точна цена при оглед на място.

ОГЛЕДЪТ И КОНСУЛТАЦИЯТА СА БЕЗПЛАТНИ.

МОЖЕТЕ СЪЩО ТАКА, ДА ПОДАДЕТЕ И БЕЗПЛАТНА ЧАСТНА ОБЯВА ЗА ПРОДАЖБА НА ВАШИЯ ИМОТ В MIRELA.BG, БЕЗ БРОКЕР И КОМИСИОНА.
Преглеждания: 87
Другите търсят също
Препоръчани за теб
Цена:
192 500 € 376 497,28 лв
Цената е с включен ДДС