ОСТАВАТ
00часа
00мин.
00сек.
до големите отстъпки на
Ден за разпродажби
Обявата не е активна. Намери подобни обяви в Имоти -> Парцели в гр. Шабла.

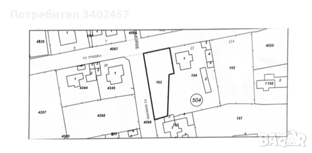
ПАРЦЕЛ 610 м² в регулация, ток и вода на улицата, 5 км от плажа → Обява 51858391

ПАРЦЕЛ 610 м² в регулация, ток и вода на улицата, 5 км от плажа, снимка 1
Обявата не е активна!
ПАРЦЕЛ 610 м² в регулация, ток и вода на улицата, 5 км от плажа, 25 000 €
гр. Шабла, Добрич Изтекла/Деактивирана на 25 януари в 15:21 ч.

Квадратура
610 кв. м.
Цена на кв.м.
41 € кв. м.
Регулация
Да
Продавам парцел 610 м² в регулация в тиха жилищна зона с постоянно живеещи съседи. Имотът е на равен терен, с много добър достъп по асфалтов път. Намира се в една от пресечките на главната улица, водеща до плажа.

Ток и вода – на улицата пред парцела.

Продажба директно от собственик.

Районът е спокоен, без презастрояване, подходящ за хора, които търсят тишина и чист въздух на северното Черноморие. На кратко разстояние са Крапец, Тюленово и Дуранкулак – едни от най-чистите и спокойни места по морето.

Подходящ за строеж на къща за живеене, вила или малък Airbnb проект.

Плажът е само на 5 км.
Преглеждания: 801
Популярни търсения: парцел в регулация