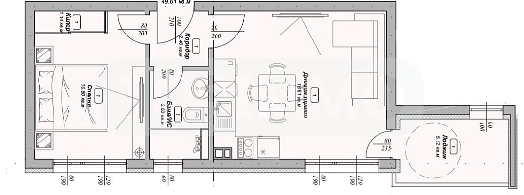
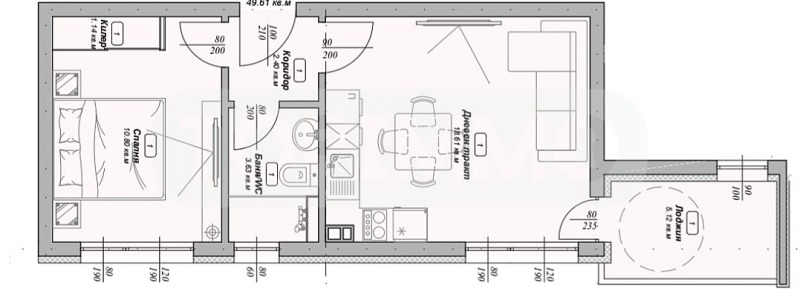
ТОПИММО
В Bazar.BG от 06 април 2020г.
Последно активен
днес в 15:37 ч.
Още оферти на https://topimmo.imot.bg


