ОСТАВАТ
00часа
00мин.
00сек.
до големите отстъпки на
Ден за разпродажби

Продава 3-СТАЕН, гр. Пловдив, Тракия → Обява 52088095

Продава 3-СТАЕН, гр. Пловдив, Тракия, снимка 1 - Апартаменти - 52088095 Продава 3-СТАЕН, гр. Пловдив, Тракия, снимка 2 - Апартаменти - 52088095 Продава 3-СТАЕН, гр. Пловдив, Тракия, снимка 3 - Апартаменти - 52088095 1/3
Продава 3-СТАЕН, гр. Пловдив, Тракия
гр. Пловдив, Тракия Наблюдавай

Публикувана/обновена на 14 април в 13:53 ч.


Тип апартамент
3-стаен
Квадратура
102 кв. м.
Цена на кв.м.
1170 €/кв. м.
Вид строителство
Тухла
Eтаж
3
Година
2028
Оферта 68030: Специално предложение - Новоизградена сграда, намираща се в престижен и предпочитан район.
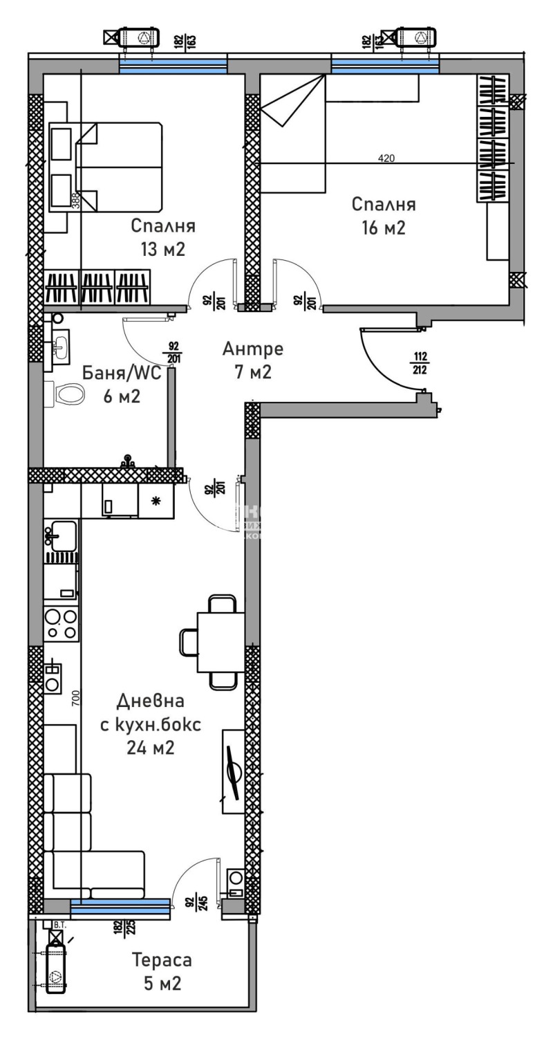
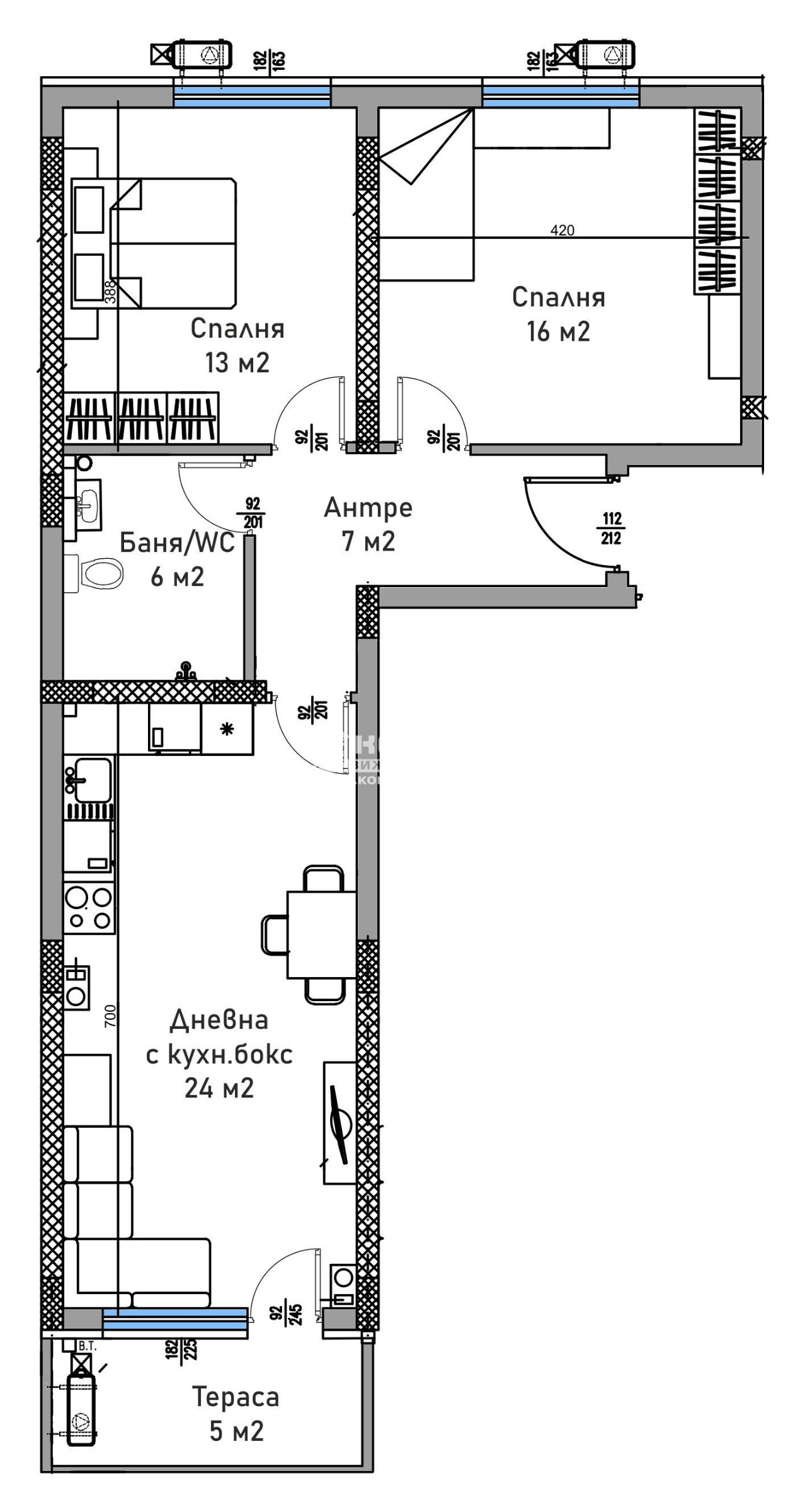
Разпределения - Предлагаме на Вашето внимание тристаен апартамент, състоящ се от дневна 24кв.м. с трапезария и кухненски бокс с излаз на тераса, две големи самостоятелни спални: детска 13кв.м. и родителска 16кв.м., баня с тоалетна, втора тоалетна, перално помещение и входно антре. Към апартамента има прилежаща изба от 3кв.м. включена в цената.
Материали - Жилищната сграда е изградена съгласно най-високите технологични изисквания за качество и лукс. Използваните материали са съобразени с най-новите тенденции в строителството - модерна външна облицовка, покривна и фасадна изолация, PVC пет камерна дограма и др. Функционалните общи части, допринасят допълнително за усещането за лукс и комфорт на обитателите.
Локация - Мястото в близост до училища детски градини, хранителни хипермаркети и удобен градски транспорт, допълнително внася комфорт в ежедневието на модерния градски човек.
Допълнителни екстри - За удобство на своите собственици, сградата разполага с възможност за закупуване на гаражи и паркоместа.
Начин на плащане - Кондор имоти предлага възможност за разсрочено плащане в рамките на строителството или банково финансиране от водещи банки на преференциални условия.ВИЖТЕ ОЩЕ ИЗГОДНИ ОФЕРТИ НА https://www.kondorimoti.com/ С ЕЖЕДНЕВНА АКТУАЛИЗАЦИЯ!
Преглеждания: 60
Другите търсят също
Препоръчани за теб
Цена:
119 320 € 233 369,64 лв
Цената е с включен ДДС