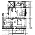
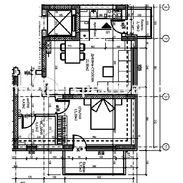
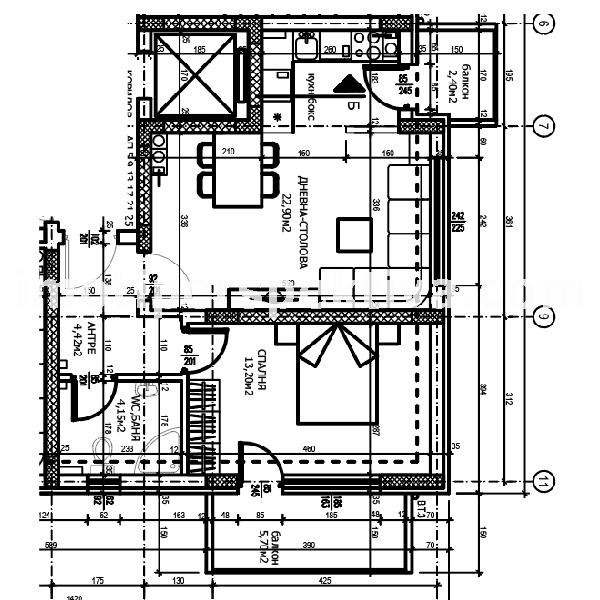
ПЕРСПЕКТИВА
В Bazar.BG от 28 февруари 2020г.
Последно активен
днес в 01:40 ч.
Още оферти на https://perspektivaimot.imot.bg



