Продава 3-СТАЕН, гр. Пловдив, Остромила → Обява 52245011

Продава 3-СТАЕН, гр. Пловдив, Остромила, снимка 1 - Апартаменти - 52245011 Продава 3-СТАЕН, гр. Пловдив, Остромила, снимка 2 - Апартаменти - 52245011 1/2
Продава 3-СТАЕН, гр. Пловдив, Остромила
гр. Пловдив, Остромила Наблюдавай

Публикувана/обновена на 02 февруари в 09:24 ч.


Тип апартамент
3-стаен
Квадратура
87 кв. м.
Цена на кв.м.
1196 €/кв. м.
Вид строителство
Тухла
Eтаж
2
Година
2027
💥 ДИРЕКТНИ ПРОДАЖБИ ОТ ИНВЕСТИТОР БЕЗ КОМИСИОННА КЪМ АГЕНЦИЯТА! 💥 ✅ ОФЕРТА: 16682
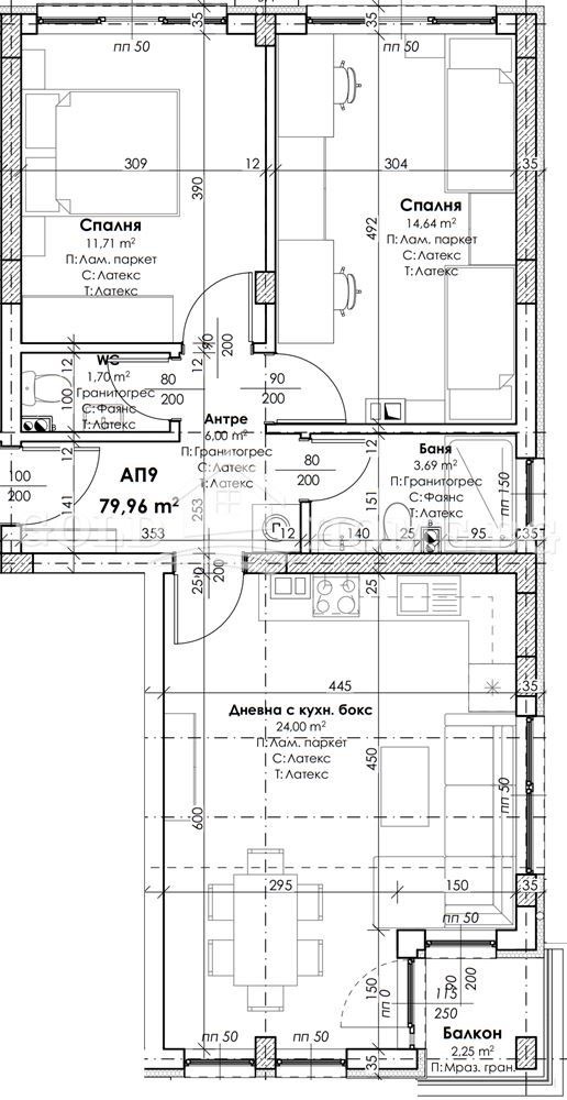
Агенция ГОЛД ИМОТИ представя малка бутикова жилищна сграда на 4 етажа с налични двустайни и тристайни апартаменти, разположена в най-спокойната и зелена част на гр. Пловдив кв. Остромила.
➡️ Разпределение:
Тристайните апартаменти се състоят от: коридор, дневна с кухненски бокс, две спални, баня с тоалетна, отделна тоалетна и тераса.
Наличности:
- 86.72 кв.м. - ет. 2 и 3, цена: 104 070 евро;
- 90.91 кв.м. - ет. 2, цена: 109 100 евро;
➡️ Характеристики и предимства:
- Имотът се отличава с ниско застрояване, което допринася за приятна и спокойна жилищна среда.
- Проектът се реализира от доверен инвеститор, като се очаква използването на качествени материали и прецизно строителство.
- Достъпът до сградата е контролиран, което гарантира по-високо ниво на сигурност и спокойствие за бъдещите обитатели.
- Планирани са добре оформени дворни пространства, подходящи за отдих и зелени площи.
- Функционално разпределени жилища, осигуряващи удобство и комфорт в ежедневието.
- Спокоен район с потенциал за развитие, осигуряващ балансирана среда между градски удобства и тишина.
➡️ Степен на завършеност:
Спрямо БДС: Стени шпакловка, под замазка, електрическа инсталация до ключ, ВиК инсталация до тапа, ПВЦ дограма, външна блиндирана врата), което Ви дава възможността да ги довършите според Вашите желания и стил.
📅 Въвеждане в експлоатация:
До 24 месеца от откриване на строителната площадка.
🅿️ Паркиране:
Възможност за закупуване на паркоместа и гаражи.
📌 Локация:
кв. Остромила тиха и зелена зона, предпочитана от семейства, които ценят съвременен, удобен и спокоен начин на живот в близост до природата и Родопите.
➡️ 'ГОЛД ИМОТИ' Ви предлага, да се възползвате от професионално кредитно посредничество чрез Credit Center при ипотека, потребителски кредит и рефинансиране!
-УСЛУГАТА Е ИЗЦЯЛО БЕЗПЛАТНА!
-ИЗГОТВЯНЕ НА НЯКОЛКО ОФЕРТИ ОТ ВОДЕЩИ БАНКИ!
-НАЙ-ИЗГОДНИ УСЛОВИЯ СПРЯМО ВАШИЯТ ПРОФИЛ!
-НЕ Е НЕОБХОДИМО ДА СЕ РАЗКАРВАТЕ ВЪВ ВСЕКИ КЛОН НА РАЗЛИЧНИ БАНКИ!
➡️ Още атрактивни и актуални оферти може да разгледате на нашият сайт: goldhome.bg
➡️ За повече информация и при интерес за оглед, моля свържете се с нас!
Преглеждания: 68
Другите търсят също
Препоръчани за теб
Цена:
104 060 € 203 523,67 лв
Цената е с включен ДДС