ОСТАВАТ
00часа
00мин.
00сек.
до големите отстъпки на
Ден за разпродажби

Продава 3-СТАЕН, гр. София, Младост 4 → Обява 52373435

Продава 3-СТАЕН, гр. София, Младост 4, снимка 1 - Апартаменти - 52373435 Продава 3-СТАЕН, гр. София, Младост 4, снимка 2 - Апартаменти - 52373435 Продава 3-СТАЕН, гр. София, Младост 4, снимка 3 - Апартаменти - 52373435 1/3
Продава 3-СТАЕН, гр. София, Младост 4
гр. София, Младост 4 Наблюдавай

Публикувана/обновена на 23 февруари в 11:31 ч.


Тип апартамент
3-стаен
Квадратура
94 кв. м.
Цена на кв.м.
2337 €/кв. м.
Вид строителство
Тухла
Eтаж
1
Година
2026
БЕЗ КОМИСИОН за клиенти на агенцията!

Cozy Home Agency продава тристаен апартамент в новострояща се сграда в Младост 4

Район с изградена инфраструктура, богато озеленяване в междублоковото пространство и в близост до метростанция Бизнес парк.

В сградата се предлагат и други свободни 3-стайни или 4-стайни жилища.

Гъвкава схема на плащане!

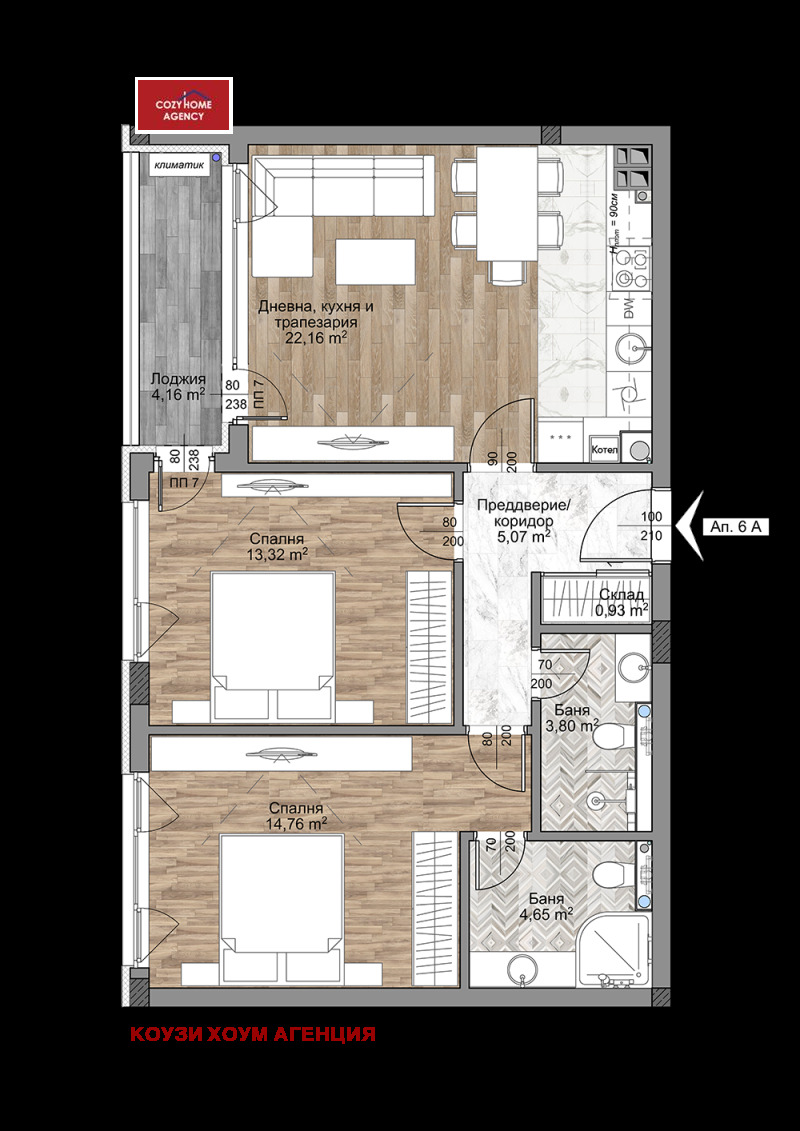
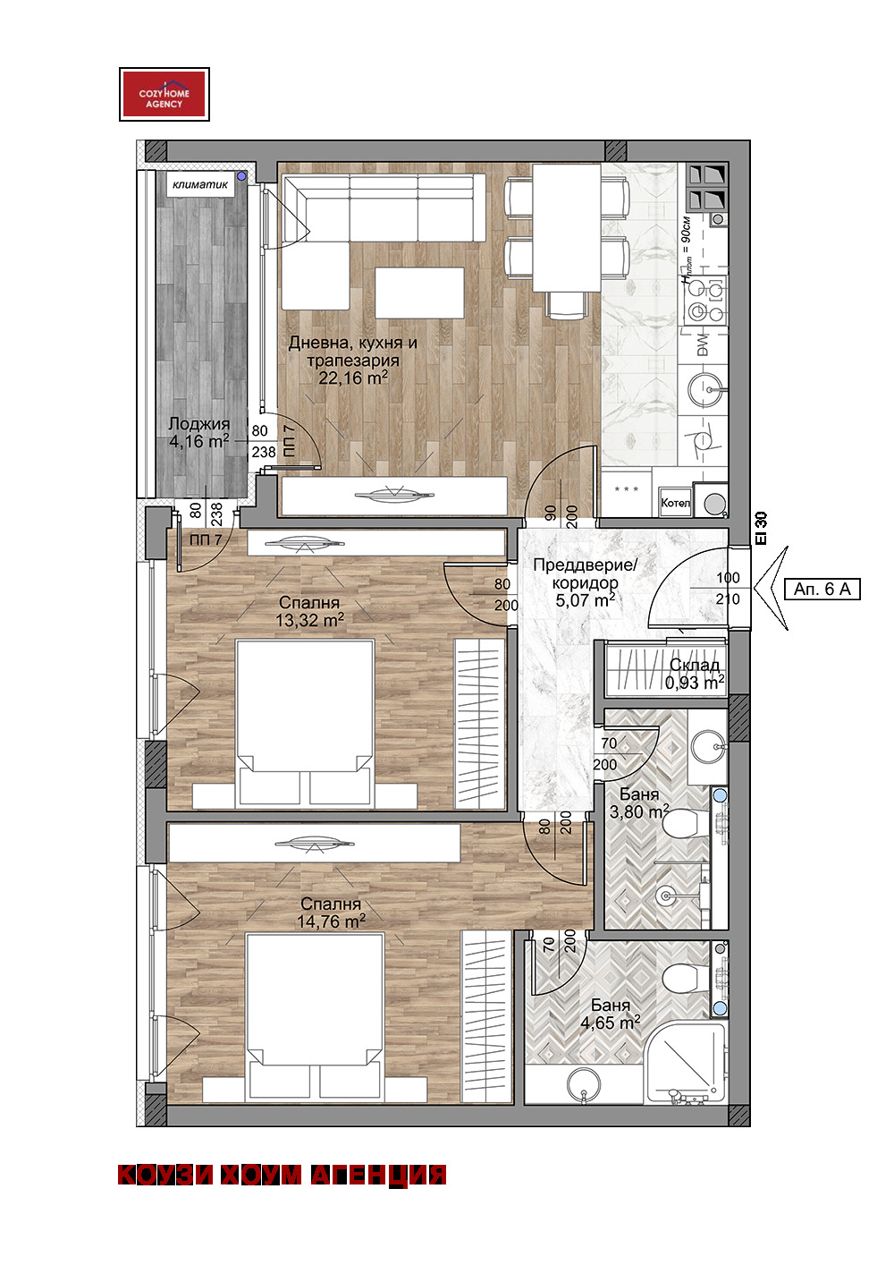
Приложена е схема на тристаен апартамент:
Етаж: 1 от 9
Площ: 93,50 кв.м

Разпределение:

-Входно антре
-Голяма дневна с кухненски бокс
-Две спални
-Две бани с тоалетни
-Склад
-Два балкона

Агенцията предлага безплатно съдействие за консултация с кредитен посредник за ипотечно финансиране.

Всички наши огледи се провеждат с протокол за оглед
Оферта 235
Свържете се с нас за да организираме Вашия оглед: 0882424017 Бирсен Шукриева
Посетете нашия сайт и разгледайте други подобни имоти: www.cozyhomeagency.com
Преглеждания: 188
Другите търсят също
Препоръчани за теб
Цена:
219 678 € 429 652,82 лв
Цената е с включен ДДС