Продава 2-СТАЕН, гр. Пловдив, Център → Обява 52386278

Продава 2-СТАЕН, гр. Пловдив, Център
гр. Пловдив, Център Наблюдавай

Публикувана/обновена на 12 ноември в 10:50 ч.


Тип апартамент
2-стаен
Квадратура
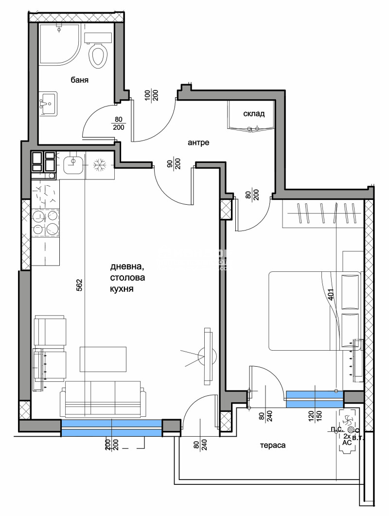
67 кв. м.
Цена на кв.м.
2099 €/кв. м.
Вид строителство
Тухла
Eтаж
4
Година
2028
Оферта 68259 - Представяме ви уникална възможност да станете собственик на апартамент в нова бутикова сграда, разположена в сърцето на града до Семинарията! Сградата предлага съвременен дизайн, висококачествени материали и удобства, които ще задоволят и най-взискателните купувачи. Жилището е с ИЗЦЯЛО ЮЖНО изложение и се състои от дневна с кухненска част, спалня, входно антре, баня с тоалетна и тераса обща за двете стаи.

Основни предимства:

- Изключителна локация: Само на 5минути пеша от Капана, пешеходната градска улица и Старинен Пловдив!

-Иновативна архитектура в Средиземноморски стил: Апартаментите са проектирани с внимание към детайла, осигурявайки уют и комфорт.

- Висококачествени материали: Използвани са само най-добрите строителни и довършителни материали, немски безшумен асансьор, луксозно отвършени общи части и фоайе, 5-камерна всесезонна дограма, парапети от масивно ковано желязо и много други екстри осигуряващи дълготрайност и стил.

- Разнообразие от площи: Предлагаме апартаменти с различни квадратури и разпределения, подходящи както за единични лица, така и за семейства.

- Паркирането е решено на две нива: Възможност за закупуване на паркоместа ,единични и двойни гаражи.

-Начин на плащане: Разсрочено плащане в рамките на строителството съобразено с възможностите на клиента.

Не пропускайте възможността да живеете в апартамент, който съчетава удобството на градския живот с уюта на дом!
Преглеждания: 13
Другите търсят също
Препоръчани за теб
Цена:
275 028,81 лв 140 620 €
Цената е с включен ДДС