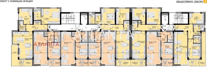
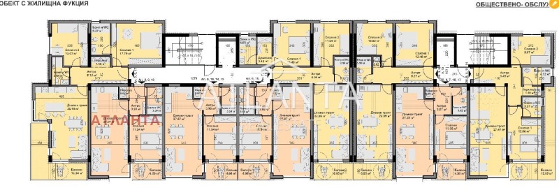
АТЛАНТА
В Bazar.BG от 11 януари 2023г.
Последно активен
днес в 10:49 ч.
Още оферти на https://atlanta.imot.bg








