Продава 2-СТАЕН, гр. Варна, Владислав Варненчик 1 → Обява 52443979

Продава 2-СТАЕН, гр. Варна, Владислав Варненчик 1
гр. Варна, Владислав Варненчик 1 Наблюдавай

Публикувана/обновена на 17 ноември в 16:15 ч.


Тип апартамент
2-стаен
Квадратура
65 кв. м.
Цена на кв.м.
1358 €/кв. м.
Вид строителство
Тухла
Eтаж
4
Година
2028
БИЛДИНГ БОКС предлага за продажба двустаен апартамент в новострояща се жилищна сграда.

ЛОКАЦИЯ: Жилищната сграда се намира в кв. Владиславово. Локация с бърз достъп до главен булевард, спирки на градски транспорт, търговски обекти, медицински центрове.
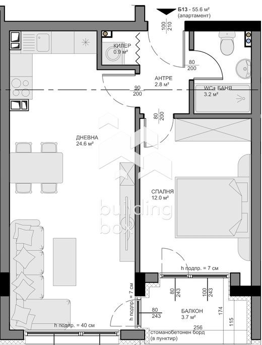
РАЗПРЕДЕЛЕНИЕ: Всекидневна с кухненски бокс с площ от 24.60 кв.м., спалня - 12.00 кв.м., антре, баня и тоалетна, килер, балкон.
ЕТАЖНОСТ: Етаж 4 от 5
ИЗЛОЖЕНИЕ: Изток
ОТОПЛЕНИЕ: Електричество
ПАРКИРАНЕ: Налични подземни паркоместа, гаражи, както и външни паркоместа, които могат да бъдат закупени допълнително.
ЕТАП НА СТРОИТЕЛСТВО: С разрешение за строеж, открита строителна площадка
СГРАДА: Сградата е проектирана на 5 жилищни етажа, с общо 42 апартамента и 2 офиса. Апартаментите разполагат с функционални разпределения.

ИНВЕСТИТОР: Инвеститор с дългогодишен опит и утвърден в сферата на жилищно и промишлено строителство, както и в ремонти на сгради и съоръжения.

Билдинг Бокс предоставя безплатна консултация и съдействие при финансиране на избрания от Вас имот.

Оферта 27078
Преглеждания: 28
Другите търсят също
Препоръчани за теб
Цена:
172 699,79 лв 88 300 €
Цената е с включен ДДС