ОСТАВАТ
00часа
00мин.
00сек.
До края на
Ден за разпродажби

Продава 2-СТАЕН, гр. София, Люлин 5 → Обява 52453037

Продава 2-СТАЕН, гр. София, Люлин 5
гр. София, Люлин 5 Наблюдавай

Публикувана/обновена на 18 ноември в 11:19 ч.


Тип апартамент
2-стаен
Квадратура
87 кв. м.
Цена на кв.м.
1696 €/кв. м.
Вид строителство
Тухла
Eтаж
2
Година
2027
БИЛДИНГ БОКС представя сграда, която се отличава с просторни жилища с перфектно разпределение, нисък процент общи части и високо качество на строителството, изпълнено от опитни професионалисти, които осигуряват сигурност и комфорт за бъдещите обитатели.

Жилищният комплекс е изпъкващ сред сградите в района с иновативен дизайн, модерна фасада и перфектни архитектурни решения. Ще предостави комфорт за бъдещите си собственици и всички необходими удобства за днешния градски живот. При изграждането на проекта ще бъдат използвани висококачествени материали и технологии.

Характеристики на имота:
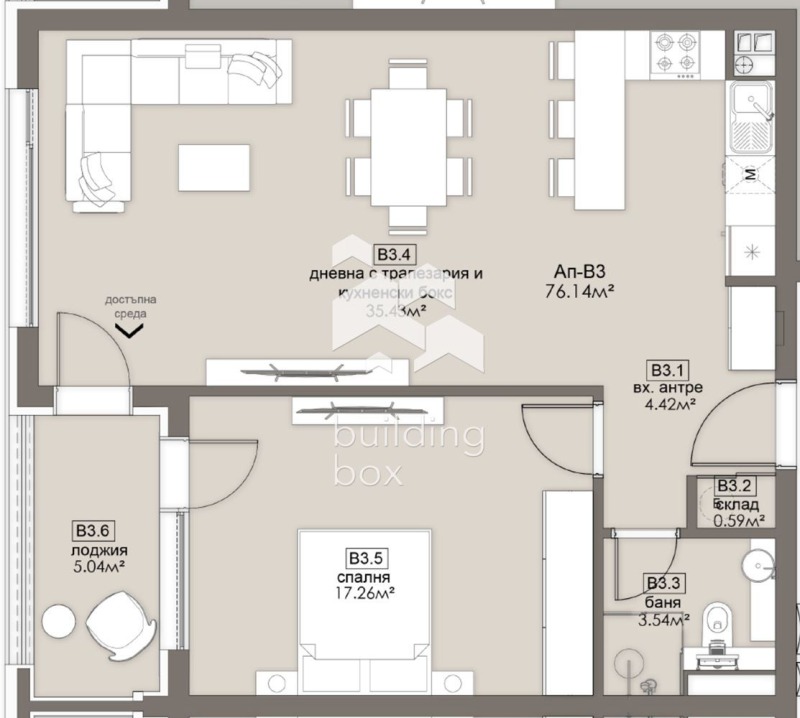
- ЕТАЖ: Апартаментът се намира се на 2-ри етаж от общо 7.
- ПЛОЩ: Имотът е със застроена площ от 76.14 кв.м.
- РАЗПРЕДЕЛНИЕ: Входно антре, дневна с кухненски бокс, спалня, склад, баня с тоалетна и лоджия.
- ИЗЛОЖЕНИЕ: Изложението на имота е ЗАПАД.
- ОТОПЛЕНИЕ: Отоплението е на ТЕЦ, ще има изводи за климатици и бойлер.

Сградата е след АКТ 14 и ще бъде завършена 2027г.

Местоположението на сградата е в непосредствена близост до спирки на градски транспорт, магазини и супермаркети, детски градини, училища, много зелени междублокови пространства и 'Западния парк'. Локацията има бърз излаз до Околовръстния път.

БИЛДИНГБ БОКС предлага безплатна консултация и кредитно съдействие за финансиране на покупката на Вашия имот.
Оферта 18567
Преглеждания: 56
Другите търсят също
Препоръчани за теб
Цена:
288 535,78 лв 147 526 €
Цената е с включен ДДС