ОСТАВАТ
00часа
00мин.
00сек.
до големите отстъпки на
Ден за разпродажби

Продава МНОГОСТАЕН, гр. София, Център → Обява 52490635

Продава МНОГОСТАЕН, гр. София, Център, снимка 1 - Апартаменти - 52490635 Продава МНОГОСТАЕН, гр. София, Център, снимка 2 - Апартаменти - 52490635 Продава МНОГОСТАЕН, гр. София, Център, снимка 3 - Апартаменти - 52490635 1/3
Продава МНОГОСТАЕН, гр. София, Център
гр. София, Център Наблюдавай

Публикувана/обновена на 10 февруари в 10:52 ч.


Тип апартамент
Mногостаен
Квадратура
154 кв. м.
Цена на кв.м.
3435 €/кв. м.
Вид строителство
Тухла
Eтаж
2
Година
1930
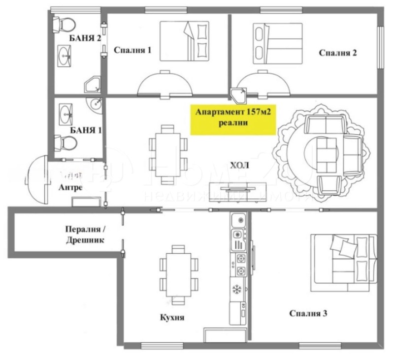
ТОП ЦЕНТЪР!!! ПРОСТОРЕН!!! ПЕТ ПОМЕЩЕНИЯ!!! Home2U Ви представя многостааен апартамент находящ се на ул. Княз Борис I в идеалния център на София.Жилището е разположено в тиха зона, в непосредствена близост до всички удобства на градския живот, магазини, ресторанти, културни и исторически забележителности на 350 м. от метростанция 'Сердика'. Апартаментът е разположен на първия етаж над магазини и се състои от входно антре, голям вестибюл, четири просторни спални, кухня, две бани с тоалетни, мокро помещение с дрешник и три балкона. Жилището е с високи тавани 3,30 метра, настилка дюшеме с ламинатен паркет, климатици във всички помещения, фасадата е с пръскана мазилка и изолация 10см. Имотът е подходящ и за офис, кантора, учебен център и други дейности.

Ако желаете да закупите този имот, обадете се СЕГА и цитирайте следния код: 139682
Преглеждания: 169
Другите търсят също
Препоръчани за теб
Популярни търсения: софия забележителности
Цена:
529 000 € 1 034 634,07 лв
Не се начислява ДДС