ОСТАВАТ
00часа
00мин.
00сек.
до големите отстъпки на
Ден за разпродажби

Продава 1-СТАЕН, гр. Русе, Широк център → Обява 52564282

Продава 1-СТАЕН, гр. Русе, Широк център, снимка 1 - Апартаменти - 52564282 1/1
Продава 1-СТАЕН, гр. Русе, Широк център
гр. Русе, Широк център Наблюдавай

Публикувана/обновена на 02 февруари в 11:16 ч.


Тип апартамент
1-стаен
Квадратура
35 кв. м.
Цена на кв.м.
1350 €/кв. м.
Вид строителство
Тухла
Eтаж
4
Година
2026
БЕЗ КОМИСИОН ОТ КУПУВАЧ!!!

RE/MAX River Estate има удовоствието Ви представи гарсониера в новострояща се жилищна монтолитна сграда на тиха улица в близост до стария център на гр. Русе.

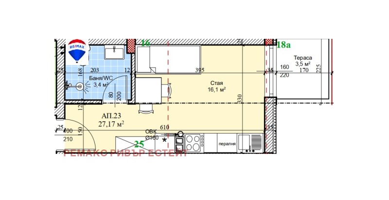
Имотът е разположен на четвърти жилищен етаж от общо седем етажа с обща площ от 35,14 кв.м. разпределени както следва:

- предверие
- баня и тоалетна в едно помещение
- стая
- тераса
- избено помещение

Локация
Районът осигурява спокойна жилищна атмосфера, което го прави предпочитан за живеене. В близост може да намерите всичко необходимо за комфортен начин на живот: детска градина, училище, аптеки, хранителни магазини, бензиностанция, спирка на градския транспорт, на пешеходно разстояние от центъра на града.

Строителство:
Проектът за изграждане е съобразен с изискванията на съвременните технологии за енергийна ефективност, което ще осигури на новите обитатели минимални разходи на енергия. Материалите, които ще се използват са с високо качество и съвременни технологии в строителството.

Имотите и общите части на сградата ще бъдат предадени в следния вид:

- Входна врата
- Стени и тавани с машинно положени гипсови мазилки
- Под с положени циментови замазки
- Шесткамерна PVC дограма с троен стъклопакет
- Завършена фасада по прокт с топлоизолационна система и структурна мазилка
- Луксозен асансьор със спирка на всички етажи
- Завършени общи части в сградата- стълбища с гранитогрес и парапети, стени и тавани с шпакловка и латекс
- Вертикална планировка, съгласно проекта
- Електроинсталация с монтирани осветитлени тела в общите части и централно Ел. табло, оборудвано с двойнотарифни електромери и свързано с външната елетропеносна мрежа
- Електроинсталация вътрешна с монтирани в апартаментни табла с автоматични предпазители без ключове и контакти
- ВиК част, завършена вертикална и хоризонтална ВиК инсталация от полипропилен до тапи с водопровод за топла и студена вода с монтирани индивидуални водомери, с външна ВиК връзка.

Всички апартаменти се издават по БДС, което позволява на новите собственици да обзаведат и подредят по свой вкус и желание - плюсът на новото строителство.

Допълнително:
- Има възможност за закупуване на гаражи на ниво сутерен на преференциални цени.
- Също така в сградата има свободни още апартаменти.
- Ще има възможност за включване към газопреносната мрежа.

Атрактивна схема на плащане съобразена с етапа на строителство.

RE/MAX съдейства БЕЗПЛАТНО при кандидатстване за банков ипотечен кредит, включително още на етап Акт 14 и предоставя преференциални условия чрез партньорствата си с водещи банки в страната.

📞 За повече информация и огледи обадете се на посочения телефон.
Преглеждания: 180
Другите търсят също
Препоръчани за теб
Цена:
47 250 € 92 412,97 лв
Не се начислява ДДС