ОСТАВАТ
00часа
00мин.
00сек.
до големите отстъпки на
Ден за разпродажби

Продава 2-СТАЕН, гр. София, Младост 2 → Обява 52613707

Продава 2-СТАЕН, гр. София, Младост 2, снимка 1 - Апартаменти - 52613707 1/1
Продава 2-СТАЕН, гр. София, Младост 2
гр. София, Младост 2 Наблюдавай

Публикувана/обновена на 18 февруари в 19:01 ч.


Тип апартамент
2-стаен
Квадратура
93 кв. м.
Цена на кв.м.
1972 €/кв. м.
Вид строителство
Тухла
Eтаж
1
Година
2027
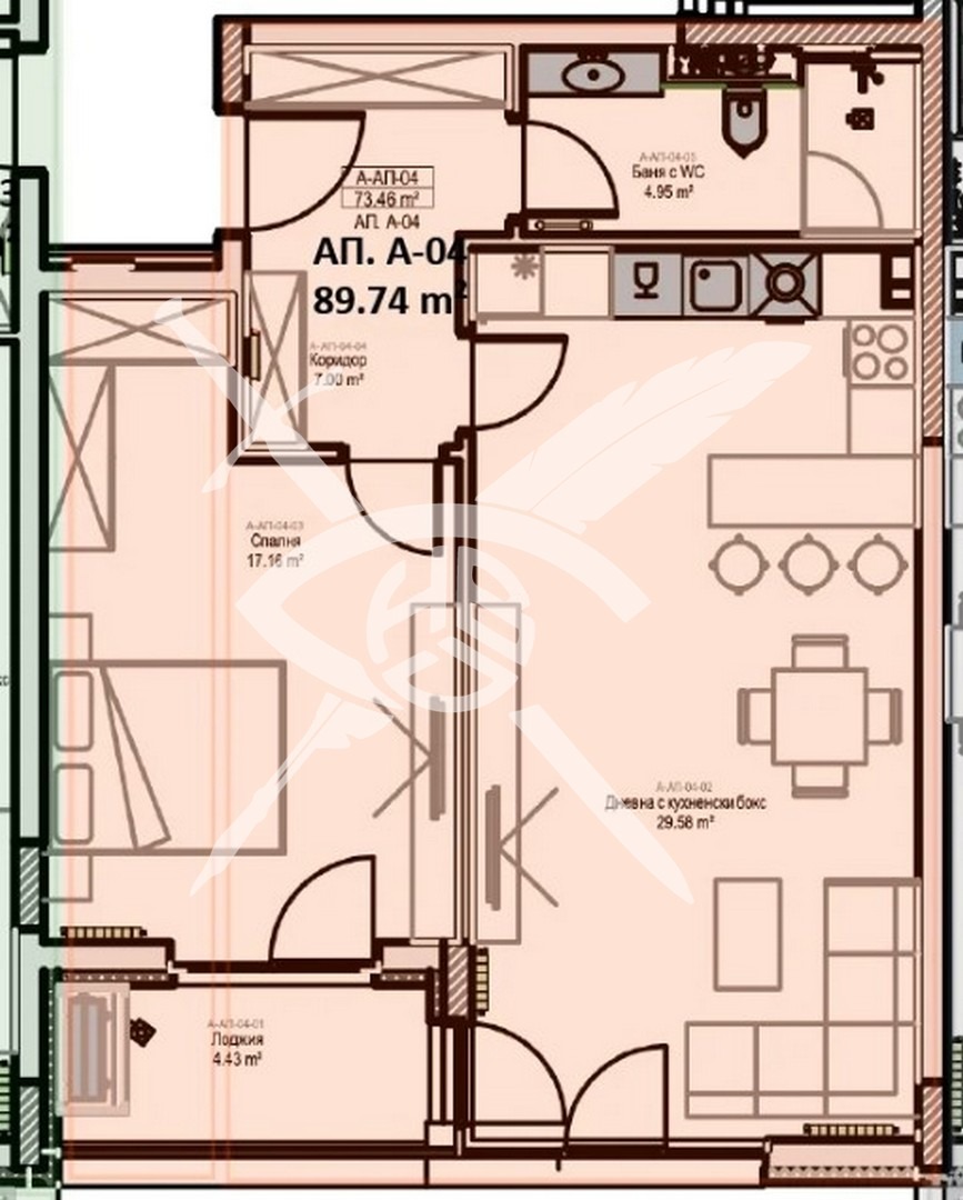
Компания `ЕКС` представя на Вашето внимание двустаен апартамент в жк. Младост 2.

МЕСТОПОЛОЖЕНИЕ: В близост до спирка на градски транспорт и магазини от всякакъв тип.

СТРОИТЕЛСТВО: Апартаментът е ситуиран на 1-ви етаж в сграда ново строителство.

РАЗПРЕДЕЛЕНИЕ: Жилището разполага с площ от 93 кв.м. разпределена във входно антре, дневна с кухненска част, спялня, баня с тоалетна и лоджия.

СЪСТОЯНИЕ: ПО БДС НА ТАПА.

Заповядайте да Ви го покажем. Използвайки нашите услуги, Вие ще превърнете закупуването на новия си дом в едно приятно изживяване, ще получите персонален консултант, съдействие при кандидатстване за кредит от всички банки в България, интериорни дизайнери и екип, който да се погрижи за нужните документи по Вашата сделка. На Ваше разположение сме всеки ден, от понеделник до неделя от 09:00 до 20:00ч. Възползвайте се от безплатна консултация в наш офис, където ще ви спестим време и ще ви запознаем с всички актуални имоти в България, отговарящи на Вашето търсене. Свържете се с нас на 0887 77 99 90 или на 0886 12 12 57 и цитирайте кода към имота:1316-37359.
Преглеждания: 128
Другите търсят също
Препоръчани за теб
Цена:
183 397,99 € 358 695,29 лв
Цената е без ДДС