ОСТАВАТ
00часа
00мин.
00сек.
до големите отстъпки на
Ден за разпродажби

Дава под наем 2-СТАЕН, гр. София, Хиподрума → Обява 52659547

Дава под наем 2-СТАЕН, гр. София, Хиподрума
гр. София, Хиподрума Наблюдавай

Публикувана/обновена на 05 декември в 12:35 ч.


Тип апартамент
2-стаен
Квадратура
76 кв. м.
Цена на кв.м.
9 €/кв. м.
Eтаж
1
ERA Фамилия отдава под наем дългосрочно двустаен апартамент, 76 кв.м. в тихия и спокоен квартал Хиподрума. Намира се 'на две крачки' от парка и от ритуална зала 'Красно село'. Кварталът е сред най-желаните в столицата, тъй като е в изключително чиста и безшумна околна среда, с множество дървета в междублоковото пространство, в същото време - близо до центъра, Медицинска академия, ВМА, НДК. Метростанция Бул. България и метростанция 'Бул. Цар Борис III / Красно село' са на 10 мин. пешеходно разстояние. В близост е до ресторанти и заведения, както и супермаркети Билла и Фантастико.
Свободно паркиране в квартала!

Жилището е разположено на първи от триетажна малка тухлена сграда, с по три апартамента на етаж и с един вход. Поддържани общи части и контрол на достъп. Апартаментът е саниран отвън и е след ремонт, както и с ново обзвеждане. Разполага с всичко необходимо за едно домакинство: пералня, сушилня за дрехи, хладилник, вградена фурна + електрически котлони за готвене (вкл. посуда). В хола дивана е разтегателен, с място за съхранение под лежанката. Може да се договори дообзавеждане според нуждите на наемателите.
Апартаментът е топъл и е с ниски месечни сметки!
Отоплението е на ТЕЦ.
Разположение: изток-запад-север.
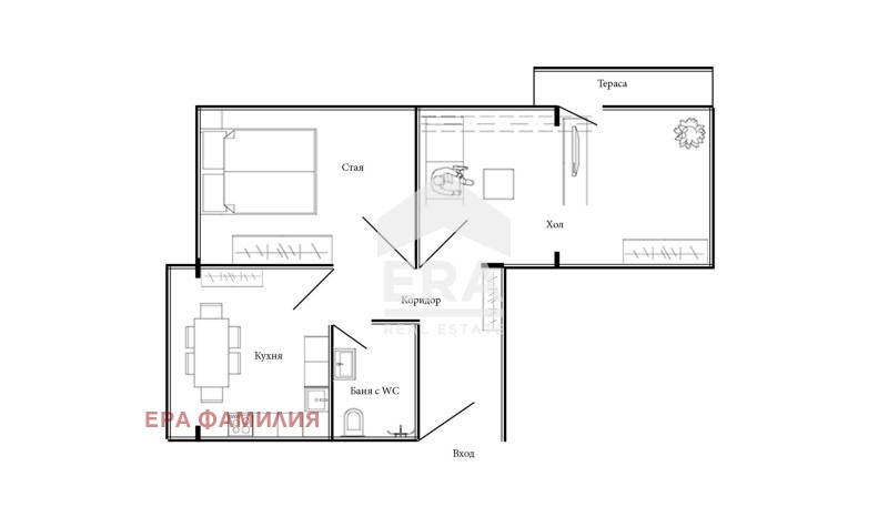
Разпределение: Входно антре, голям хол, стая/спалня, кухня с трапезария и усвоена тераса, баня с тоалетна и тераса (на която за лятото са предвидени маса и столове).

Наемната цена е 650 евро + един депозит в размер на един наем. С предимстов ще бъдат разглеждани кандидати за дългосрочно наемане.
За допълнителна информация и огледи: 0888 118 101 - консултант Иван Иванов.

Оферта 3506527
Преглеждания: 200
Другите търсят също
Обяви на потребителя ЕРА ФАМИЛИЯ Виж всички 86 обяви
Препоръчани за теб
Цена:
1 271,29 лв 650 €
Цената е с включен ДДС