Продава 2-СТАЕН, гр. София, Малинова долина → Обява 52693015

Продава 2-СТАЕН, гр. София, Малинова долина, снимка 1 - Апартаменти - 52693015 Продава 2-СТАЕН, гр. София, Малинова долина, снимка 2 - Апартаменти - 52693015 Продава 2-СТАЕН, гр. София, Малинова долина, снимка 3 - Апартаменти - 52693015 1/3
Продава 2-СТАЕН, гр. София, Малинова долина
гр. София, Малинова долина Наблюдавай

Публикувана/обновена днес в 09:17 ч.


Тип апартамент
2-стаен
Квадратура
116 кв. м.
Цена на кв.м.
1585 €/кв. м.
Вид строителство
Тухла
Година
2028
ДИРЕКТНО ОТ ИНВЕСТИТОР! 'Ви Ем Инвест' ви представя двустаен апартамент в Жилищна сграда Добруджа. Проект, гарантиращ сигурност и комфорт в затворен тип комплекс, който се намира в кв. Малинова долина, в непосредствена близост до хипермаркети, молове, детска градина и Околовръстен път. Кварталът е разположен в южната част на София, далеч от градския шум и в подножието на планината, а същевременно с бърз и лесен достъп до центъра на града.

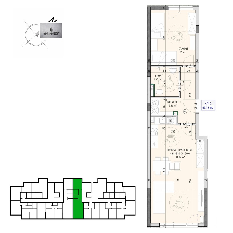
Апартаментът /Ап.6, Вх.А/ е с площ от 78,54 кв.м. и е на партерно ниво.
Разпределение: антре /8,26 кв.м./, дневна с кухненски бокс /31,97 кв.м./, спалня /15,00 кв.м./, баня с тоалетна /4,72 кв.м./ и два прилежащи двора /29,04 кв.м. и 8,73 кв.м./.
Има възможност за закупуване на паркоместа /от 22000 евро/, както и гаражи /от 28000 евро/.
Сградата е с богато озеленено пространство, с алеи за разходка.
Комплексът разполага с общо 39 апартамента, 28 подземни гаража и паркоместа и 9 надземни паркоместа. Всяко жилище е проектирано с внимание към детайла и предлага просторни, светли помещения с функционални и отворени планове, които създават усещане за простор и комфорт и позволяват обединяване на съседни имоти.
Сградите са с ниско енергийно потребление и минимален отпечатък върху околната среда.
Компанията ни може да ви съдейства за кредитно посредничество, ако сте предвидили плащания чрез ипотечен и/или потребителски кредит.
Като наши клиенти имате възможността да се възползвате от безплатно кредитно консултиране. Ще получите най-добрите оферти, съобразени с вашия личен профил и предпочитания, при преференциални условия.
Научете повече на: www.vminvest.bg
Преглеждания: 238
Другите търсят също
Препоръчани за теб
Цена:
183 819 € 359 518,71 лв
Цената е с включен ДДС