ОСТАВАТ
00часа
00мин.
00сек.
до големите отстъпки на
Ден за разпродажби

Продава 2-СТАЕН, гр. Пловдив, Каменица 1 → Обява 52705213

Продава 2-СТАЕН, гр. Пловдив, Каменица 1, снимка 1 - Апартаменти - 52705213 Продава 2-СТАЕН, гр. Пловдив, Каменица 1, снимка 2 - Апартаменти - 52705213 Продава 2-СТАЕН, гр. Пловдив, Каменица 1, снимка 3 - Апартаменти - 52705213 1/3
Продава 2-СТАЕН, гр. Пловдив, Каменица 1
гр. Пловдив, Каменица 1 Наблюдавай

Публикувана/обновена днес в 13:20 ч.


Тип апартамент
2-стаен
Квадратура
65 кв. м.
Цена на кв.м.
2328 €/кв. м.
Вид строителство
Тухла
Eтаж
4
Година
2027
LUXIMMO FINEST ESTATES: www.luximmo.bg
Представяме двустаен апартамент ново строителство в центъра на Пловдив - кв. 'Каменица 1'. Отлично местоположение на пешеходно разстояние от Стария град, Капана и забележителностите на града. Интелигентен избор за всеки, който търси дом или имот с отлична локация, удобна инфраструктура.

Сградата е в процес на строеж, a Акт 16 e предвиден през 2027 г.

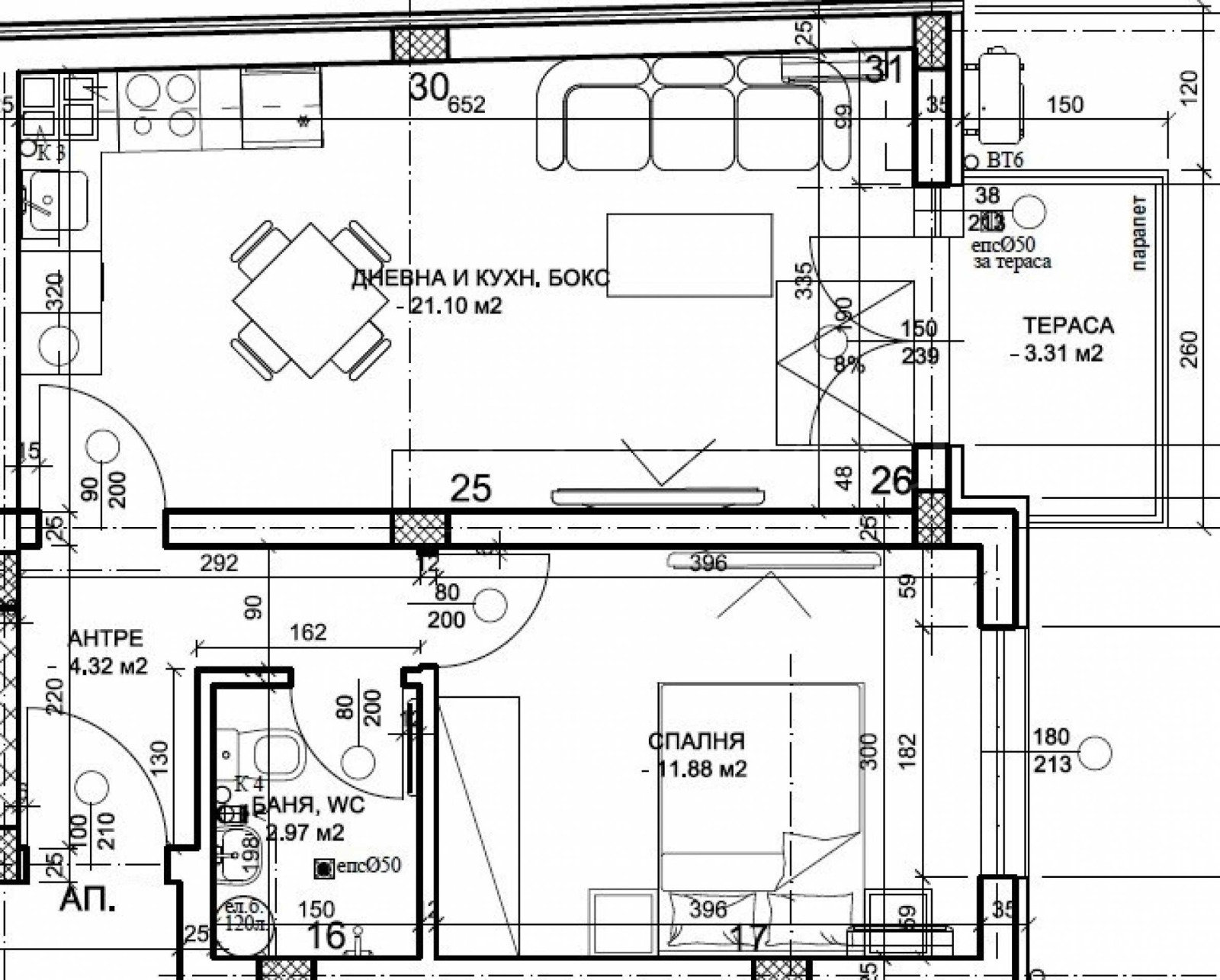
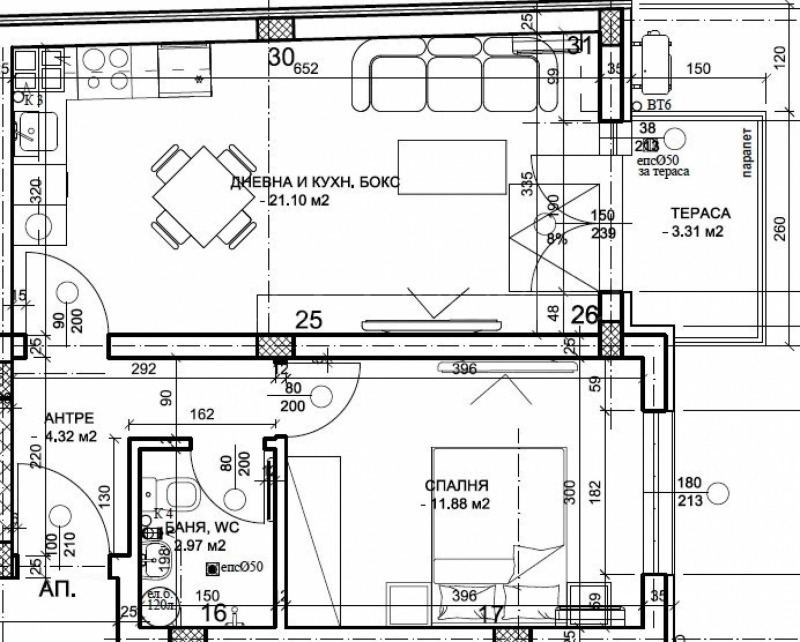
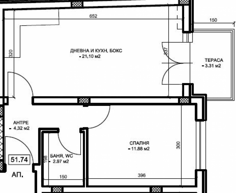
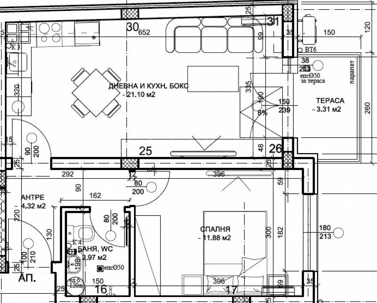
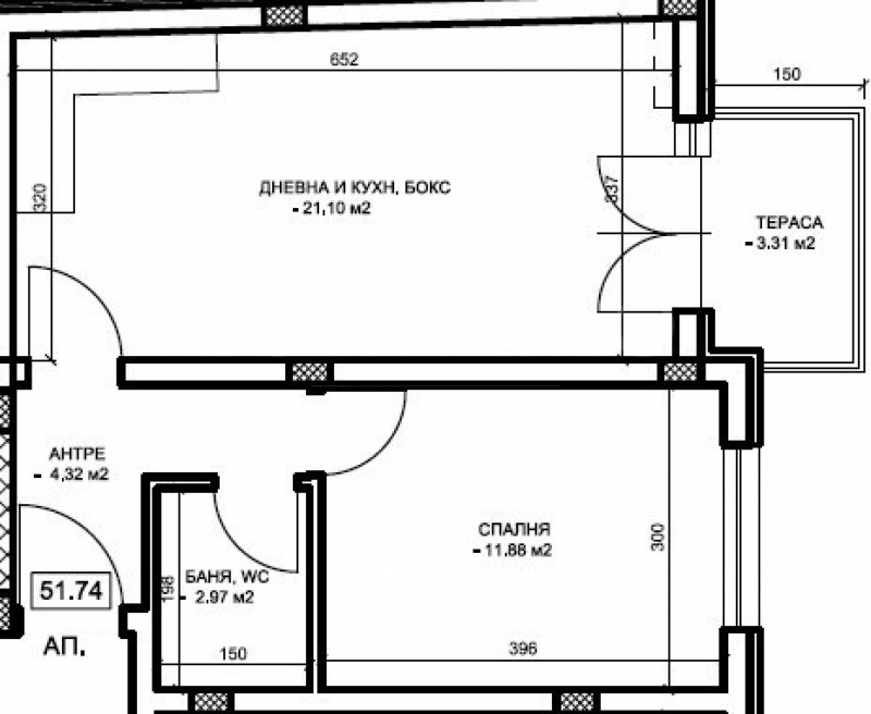
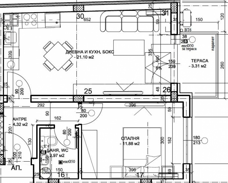
Имотът с обща площ от 65.78 кв.м се намира на 4-ти етаж от 5, с изложение изток и има следното разпределение:
антре - 4.32 кв.м;
всекидневна с кухненски бокс - 21.10 кв.м;
спалня - 11.88 кв.м;
баня и тоалетна - 2.97 кв.м;
тераса - 3.31 кв.м.
склад - 3.05 кв.м.

Предимства:
топ локация в центъра на града;
модерна сграда;
отлична възможност за инвестиция или собствен дом.

Жилището се предава в степен на завършеност по БДС, спрямо най-добрия строителен стандарт и характеристики. Външният вид на сградата е с елегантен архитектурен облик, отговарящ на изискванията за съвременен дизайн и функционалност, с асансьор и контролиран достъп.

Технически характеристики:
ефективна топлоизолация с плоскости от XPS и каменна вата с дебелина от 10 см;
външна облицовка от широкоформатен гранитогрес и водоотблъскваща мазилка;
машинно шпакловани стени и тавани - гипсова мазилка;
подове - шумоизолация и циментова уравнителна замазка;
Ел. и ВиК инсталации;
окабеляване;
фасадна дограма висок клас луксозна алуминиева дограма с прекъснат термомост /марка Reynaers Aluminiumс или Schüco /, с 2 двукамерен стъклопакет с 3 три стъкла;
тераси под - гранитогрес, парапет по проект;
външна врата монтирана метална /блиндирана/ входна врата с брава;
висок клас луксозен безшумен пътнически асансьор марка Орона.

За повече информация, моля свържете се с нас.

За повече информация свържете се с нас и цитирайте референтния номер на имота. Моля, кажете, че сте видeли обявата в този сайт.
Референтен номер: PLV-136545
Тел: 0889 003 187, 032 331 006
Отговорен брокер:Ивайло Бозаджиев
Преглеждания: 110
Другите търсят също
Препоръчани за теб
Цена:
151 295 € 295 907,30 лв
Не се начислява ДДС