ОСТАВАТ
00часа
00мин.
00сек.
до големите отстъпки на
Ден за разпродажби

Продава 3-СТАЕН, гр. Пловдив, Тракия → Обява 52707143

Продава 3-СТАЕН, гр. Пловдив, Тракия, снимка 1 - Апартаменти - 52707143 1/1
Продава 3-СТАЕН, гр. Пловдив, Тракия
гр. Пловдив, Тракия Наблюдавай

Публикувана/обновена на 06 януари в 13:56 ч.


Тип апартамент
3-стаен
Квадратура
109 кв. м.
Цена на кв.м.
1326 €/кв. м.
Вид строителство
Тухла
Година
2027
✔Възможност за схема на плащане - 10/90! ✔Светла конструктивна височина на помещенията 2.70м ✔Награда за Луксозен Пространствен дизайн ✔ Доказан строител! ✔ Гарантирана цена до Акт 16! ✔ Разсрочени схеми на плащане!

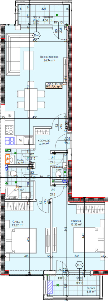
➡Имотът се състои от антре, баня с тоалетна, отделно тоалетна, склад/перално помещение, 2 спални, дневна с кухня и трапезария, 2 тераси и е с обща площ от 109,02 кв.м.

✔Локация: Сградата се се намира в началото на квартал Тракия, на пешеходно разстояние от Парк Лаута .
На 200м от ЦДГ Еделвайс ,
На 350м от Детски ясла Слънчев рай
На 500м от ДГ Кремена ,
На 550м от магазин Лидъл
На 650м от Средно училище Черноризец Храбър
На 800м от Средно училище Димитър Матевски
На 900м от магазин Кауфланд
На 900м от магазин Метро

✔Предимства:
Дворното пространство е 13 700 м², красиво озеленено, с места за отдих, модерни детски площадки и стрийт фитнес. Луксозни общи части, с безупречна поддръжка, контрол на достъп, жива охрана, както и видеонаблюдение 24/7, ще допринасят за комфорта и спокойствието на живущите в комплекса.

✔Технически характеристики:
- стени и тавани - гипсова мазилка;
- под - циментова замазка;
- височина (светла част) на жилищни помещения - 2,60м. (Светлата конструктивна височина е 2,70м);
- светла височина на мокри помещения - 2,55 м;
- входни врати на апартаменти - блиндирани;
- дограма - ПВЦ с троен стъклопакет;
- ел. инсталации - монтирано ел. табло, ел. инсталация на фасунги, контакти и ключове, електромер;
- ВиК мрежа - монтиран водомер, ВиК инсталация, на тапа;
- външна топлоизолация - 10см вата;
- хидро- и топлоизолация на покрив - хидроизолация - газопламъчна два пласта, топлоизолация - 12см XPS;
- разводки за климатик;

✔Общи части:
- парапети - метални или алуминиеви по стълбища и етажни площадки, шумо- и топлоизолиращи междуетажни врати, добре осветени стълбищни клетки с гранитни или мраморни стъпала,
- луксозни фоайета и коридори.
- луксозни безшумни бързи асансьори

Изби:
- стени и тавани - варо-циментова мазилка;
- под - шлайфан бетон;
- врати - метални.
Гаражи:
- стени и тавани - гипсова мазилка;
- под - шлайфан бетон;
- врати - секционни гаражни врати.

Магазини:
- стени - гипсова мазилка;
- тавани - бетон;
- за мокри помещения стени и тавани - варо-циментова мазилка;
- под - циментова замазка;
- височина (светла част) - (Светла конструктивна височина - 4,30м);
- светла височина на мокри помещения - 4,15 м;
- дограма - алуминиева дограма, включително врата към помещението;
- ел. инсталации - монтирано ел. табло, ел. инсталация и електромер;
- ВиК мрежа - монтирани водомери, ВиК инсталация, на тапа;
- външна топлоизолация - 10см
- разводки за климатик.

✔Паркинг: Паркирането е обезпечено на 100 % с гаражи и паркоместа,

➡Alpha Real Estate, специализиран посредник на водещите строителни фирми, член на Националната браншова организация НСНИ. За още предложения ново строителство в гр. Пловдив посетете нашия сайт: https://alphaestate.bg

Реф. 3250
Преглеждания: 32
Другите търсят също
Препоръчани за теб
Цена:
144 530 € 282 676,11 лв
Цената е с включен ДДС