ОСТАВАТ
00часа
00мин.
00сек.
до големите отстъпки на
Ден за разпродажби

Продава 3-СТАЕН, гр. София, Малинова долина → Обява 52718364

Продава 3-СТАЕН, гр. София, Малинова долина, снимка 1 - Апартаменти - 52718364 Продава 3-СТАЕН, гр. София, Малинова долина, снимка 2 - Апартаменти - 52718364 Продава 3-СТАЕН, гр. София, Малинова долина, снимка 3 - Апартаменти - 52718364 1/3
Продава 3-СТАЕН, гр. София, Малинова долина
гр. София, Малинова долина Наблюдавай

Публикувана/обновена на 15 март в 09:25 ч.


Тип апартамент
3-стаен
Квадратура
90 кв. м.
Цена на кв.м.
1799 €/кв. м.
Вид строителство
Тухла
Eтаж
1
Година
2026
ДИРЕКТНО ОТ ИНВЕСТИТОР!АКТ14! кв. Малинова Долина, ул. Тодор Йончев на ъгъла с ул. Мирела Френи. Сградата ще се състои от 29 апартамента, разположени на 4 етажа, с подземен гараж, предлагащ удобство и сигурност за вашето паркиране.

Старт на строителството: септември 2025 г.
Очакван акт 16: декември 2026 г.

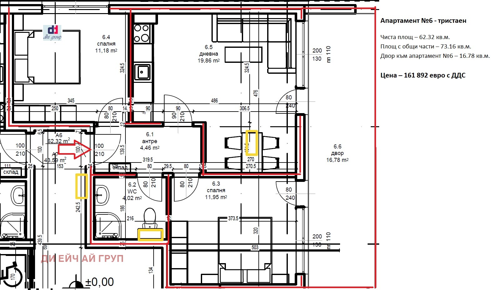
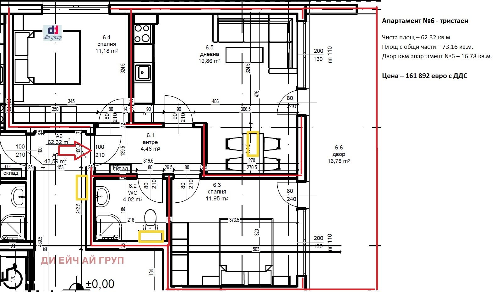
Апартамент 6 - тристаен
Чиста площ 62.32 кв.м.
Площ с общи части 73.16 кв.м.
Двор към апартамент 6 16.78 кв.м.
Цена 161 892 евро с ДДС

Възможност за покупка на паркомясто или гараж в сутерена.

Начин на плащане:
30% - при подписване на предварителен договор
30% - при Удостоверение за завършен груб строеж по чл. 181 от ЗУТ
30% - при достигнат АКТ15
10% - при Разрешение за ползване.

Съдействаме и за покупка с ипотечен кредит.

За локацията:
на 100 метра от новоизградения булевард проф. Живко Сталев.
На 150 метра от новоизградената Детска градина - 190
На 500 метра от Национална Спортна Академия
На 800 метра от Кауфланд и Фантастико
На 500 метра от спирки на градски транспорт на автобус /94, 102, 280, 294/

Не пропускайте възможността да инвестирате в качествено ново строителство в бързо развиващ се район с отлична инфраструктура и лесен достъп до ключови точки на столицата.

За допълнителна информация и огледи, не се колебайте да се свържете с нас!
Преглеждания: 308
Другите търсят също
Препоръчани за теб
Цена:
161 892 € 316 633,23 лв
Цената е с включен ДДС