Продава 2-СТАЕН, гр. София, Люлин 9 → Обява 52719418

Продава 2-СТАЕН, гр. София, Люлин 9
гр. София, Люлин 9 Наблюдавай

Публикувана/обновена днес в 11:51 ч.


Тип апартамент
2-стаен
Квадратура
48 кв. м.
Цена на кв.м.
2458 €/кв. м.
Вид строителство
Панел
Eтаж
8
Година
1970
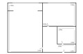
Продаваме преустроена в двустаен апартамент гарсониера.
Жилището е основно ремонтирано преди 5 години.
Имотът е в много добро състояние и може да се ползва във вида, в който се намира.
Вътрешното разположение в сградата, качествената дограма и топлоизолация, както и югозападно изложение правят жилището изключително топло, поради което радиаторите са демонтирани.
Общите части на входа се поддържат в много добро състояние сменена дограма и входна врата, боядисани стълбищни и етажни площадки, подменени водопроводни щрангове и др.
Етажната собственост разполага с помещение, което се отдава под наем, който покрива всички разходи по поддръжка и обновление на общите части.
Блок 912 се намира в близост до спирки на наземен транспорт, както и на десетина минути от метростанция.
Още наши оферти можете да намерите на www.universi.bg
Преглеждания: 5
Другите търсят също
Препоръчани за теб
Цена:
230 787,94 лв 118 000 €
Не се начислява ДДС