Продава 3-СТАЕН, гр. Пловдив, Въстанически → Обява 52747116

Продава 3-СТАЕН, гр. Пловдив, Въстанически
гр. Пловдив, Въстанически Наблюдавай

Публикувана/обновена вчера в 16:02 ч.


Тип апартамент
3-стаен
Квадратура
99 кв. м.
Цена на кв.м.
1121 €/кв. м.
Вид строителство
Тухла
Eтаж
2
Година
2029
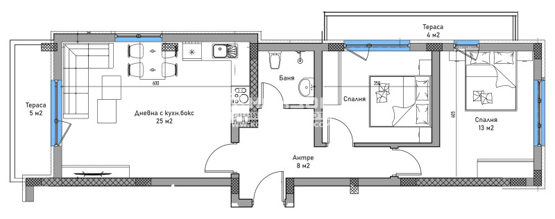
Оферта 68469 - Предлагаме Ви тристаен апартамент в един от новите ни жилищни комплекси със собствен стил с изчистена и модерна визия, проектиран с нисък процент общи части, така че да създаде максимален комфорт и уют за живеене. Проектът предвижда комплексно застрояване, просторни и панорамни жилища, голям вътрешен двор с оформен детски кът и зелени зони за релакс и почивка. Жилището се състои от ъглова дневна 25кв.м. с трапезария и кухненски бокс, две самостоятелни спални, баня с тоалетна, входно антре и две тераси. Към апартамента има БОНУС ИЗБА!!! Сградата е разположена в район с развита инфраструктура в близост до главен булевард с удобен транспорт към централна градска част, училища, детска градина, детска ясла и голям хранителен хипермаркет. Изпълнението ще се осъществява с висококачествени материали и съвременни технологии, по европейски стандарт, шесткамерна PVC дограма троен стъклопакет, блиндирана входна врата с 4-странно заключване, сензорно осветление, хидравлични асансьори с огледална кабина !!! Проектирането е съобразено така че да създаде максимален комфорт и функционалност, като първия акцент са елегантните общи части, широки входни антрета с красив дизайн, които да носи удоволствие. Предвидена е звукоизлолация по пода за максимален комфорт и ограничаване на въздействието на шума върху обитателите на сградата. Паркирането е решено с външни и подземни паркоместа, както и с партерни гаражи. Гъвкави схеми на разсрочено плащане в рамките на строителството, както и съдействие за банково кредитиране с изключително изгодни условия за клиенти на агенция Кондор.
Преглеждания: 20
Другите търсят също
Препоръчани за теб
Цена:
111 000 € 217 097,13 лв
Цената е с включен ДДС