ОСТАВАТ
00часа
00мин.
00сек.
До края на
Ден за разпродажби

Продава 3-СТАЕН, гр. София, Красна поляна 2 → Обява 52812041

Продава 3-СТАЕН, гр. София, Красна поляна 2, снимка 1 - Апартаменти - 52812041 Продава 3-СТАЕН, гр. София, Красна поляна 2, снимка 2 - Апартаменти - 52812041 Продава 3-СТАЕН, гр. София, Красна поляна 2, снимка 3 - Апартаменти - 52812041 Продава 3-СТАЕН, гр. София, Красна поляна 2, снимка 4 - Апартаменти - 52812041 Продава 3-СТАЕН, гр. София, Красна поляна 2, снимка 5 - Апартаменти - 52812041 Продава 3-СТАЕН, гр. София, Красна поляна 2, снимка 6 - Апартаменти - 52812041 1/6
Продава 3-СТАЕН, гр. София, Красна поляна 2
гр. София, Красна поляна 2 Наблюдавай

Публикувана/обновена на 14 януари в 14:10 ч.


Тип апартамент
3-стаен
Квадратура
94 кв. м.
Цена на кв.м.
2107 €/кв. м.
Вид строителство
Тухла
Eтаж
8
Година
2026
АКТ 14 !!!

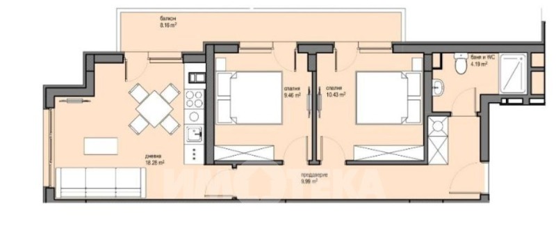
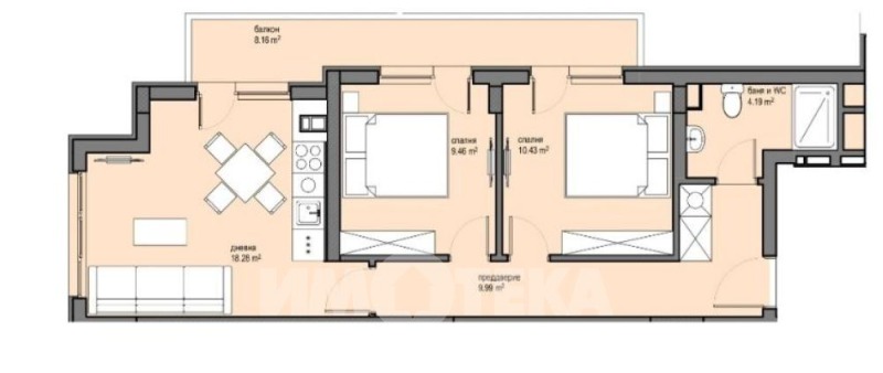
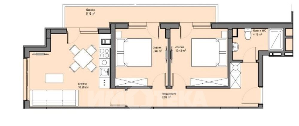
Тристаен апартамент със застроена площ от 68.49 кв.м. Състои се от: преддверие, трапезария с кухненски бокс, самостоятелни спални 2 бр, баня с тоалетна и балкон. Има възможност за закупуване на подземни паркоместа.
Намира се в югозападната част на столицата, в квартал 'Красна поляна'. Район в близост до училища и детски градини, като например 123 СУ 'Стефан Стамболов', ДГ 126 'Тинтява', 136 ОУ 'Любен Kаравелов' и други. Локацията предлага оптимална близост до новата метростанция 'Овча купел', което улеснява придвижването до Нов български университет и Софийски университет 'Св. Климент Охридски'. В близост има различи вериги супермаркети, фитнеси, болница 'Надежда' и пазар 'Росица'. Има добре изградена транспортна инфраструктура и се обслужва от всички видове градски транспорт: метро; трамваи 4, 11 и 22; автобуси 11, 60 и 83.
Осеметажна сграда с три входа. Нов дом на енергични хора, които не искат да се лишават от просторни и функционални разпределения разположени върху парцел от 3320 кв.м. Влаганите материали в строителството и доставчиците са доказали качеството си във времето. Акт 14 се очаква през месец Януари 2025 година.
Бърз достъп до центъра на град София и в същото време бягство от градската среда. Метростанция 'Овча купел'. Функционални разпределения. Развита инфраструктура. Добро и балансирано съотношение между качество и цена.
Обади се сега и цитирай този код 630006
Преглеждания: 76
Другите търсят също
Препоръчани за теб
Цена:
198 072 € 387 395,16 лв
Не се начислява ДДС