Продава 4-СТАЕН, гр. София, Център → Обява 52826790

Продава 4-СТАЕН, гр. София, Център, снимка 1 - Апартаменти - 52826790 1/1
Продава 4-СТАЕН, гр. София, Център
гр. София, Център Наблюдавай

Публикувана/обновена на 17 декември 2025г. в 16:29 ч.


Тип апартамент
4-стаен
Квадратура
234 кв. м.
Цена на кв.м.
2307 €/кв. м.
Вид строителство
Тухла
Eтаж
3
Година
2027
ОТЛИЧНА ЛОКАЦИЯ !!! СТАРТИРАЛО СТРОИТЕЛСТВО !!! ЛУКСОЗНА СГРАДА !!!

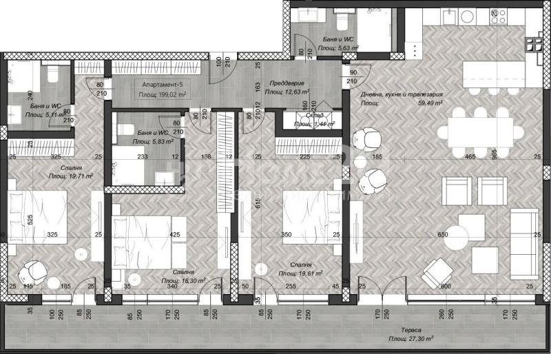
Представяме на Вашето внимание четристаен апартамент в нова жилищна сграда без аналог на пазара в центъра на столицата. Апартаментът ще разполага със следното функционално разпределение:

входно антре, хол + кухненски бокс 59кв.м., три спални (две енсюит), три бани + тоалетни, склад, тераса 27кв.м.

Фасадата на сградата е съвременна и модерна с елегантни декоративни елементи, които подчертават обемите. Конструкцията е монолитна стоманобетонна с външни зидове от 25 см. тухли и 10 см. топлоизолация. Терасите са предвидени с ажурни и плътни парапети с височина от мин. 120 см. от готов под. А създаването на общо пространство в градската среда е предизвикателство за осигуряването му по функционален път, което допълва уютната обстановка и качеството на живот. Предвидена е богато озеленена, общодостъпна покривна тераса.

Обадете и цитирайте код: 141600
Преглеждания: 89
Другите търсят също
Препоръчани за теб
Цена:
539 764 € 1 055 686,62 лв
Цената е с включен ДДС