ОСТАВАТ
00часа
00мин.
00сек.
До края на
Ден за разпродажби

Продава 2-СТАЕН, гр. София, Бояна → Обява 52849017

Продава 2-СТАЕН, гр. София, Бояна, снимка 1 - Апартаменти - 52849017 Продава 2-СТАЕН, гр. София, Бояна, снимка 2 - Апартаменти - 52849017 1/2
Продава 2-СТАЕН, гр. София, Бояна
гр. София, Бояна Наблюдавай

Публикувана/обновена на 19 януари в 09:35 ч.


Тип апартамент
2-стаен
Квадратура
76 кв. м.
Цена на кв.м.
3684 €/кв. м.
Вид строителство
Тухла
Eтаж
1
Година
2025
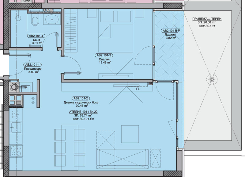
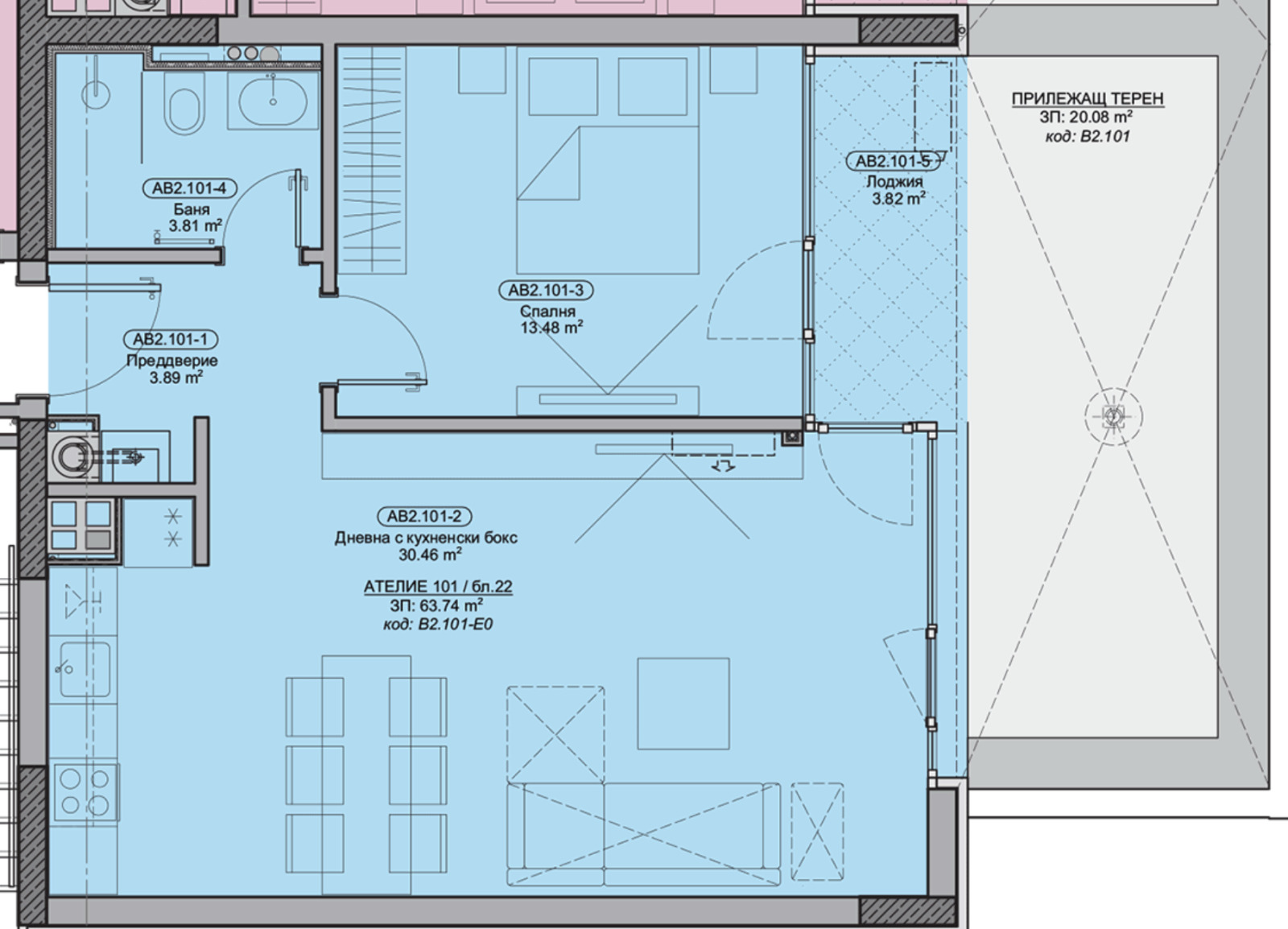
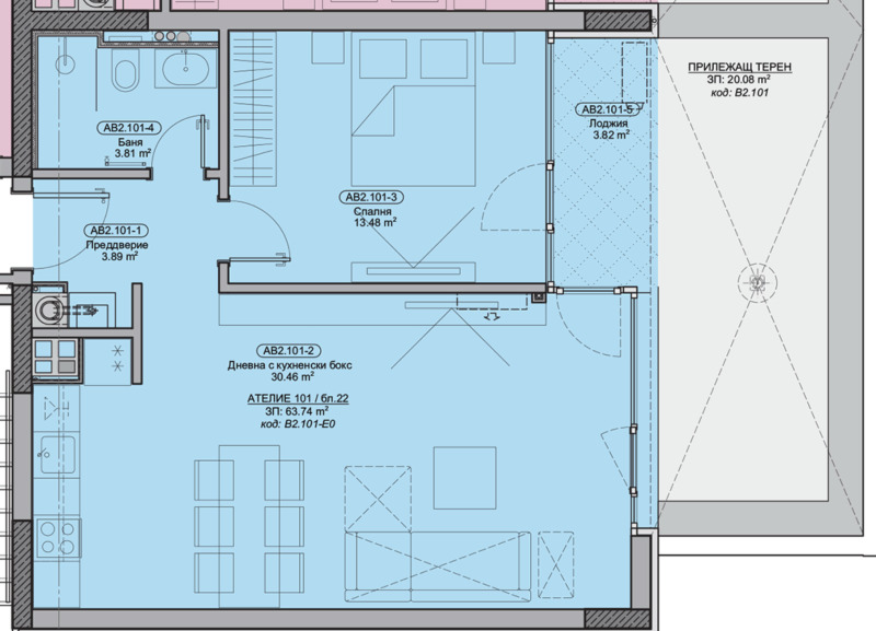
📌 Референтен номер: 2103272.

❗ Революшън Естейт представя двустаен апартамент С ВКЛЮЧЕНО В ЦЕНАТА ПОДЗЕМНО ПАРКОМЯСТО в затворен комплекс С АКТ 16 в ж.к. Бояна. ❗

🔷 Квадратура: ЗП - 64.74 кв.м. РЗП -76.34 кв.м.
🔷 Етаж: 1 от 5
🔷 Изложение: Запад/Север.
🔷 Разпределение: преддверие, всекидневна с кухненски бокс, спалня, баня с тоалетна, тераса.
🔷 Отоплението е на газ, посредством газово котле.
🔷 В цената на имота е включено ПОДЗЕМНО ПАРКОМЯСТО!
🔷 Жилището е със статут на ателие.

🏡✨ Комплексът предлага поддържана и организирана среда красиви междублокови пространства, градини с пейки, детски кът, фитнес, ресторант, охрана.

В близост до комплекса ще намерите:

- Подготвително училище: ДГ 112 'Детски свят';
- Автобусна спирка: Киноцентър Бояна на 455 метра.
- Боянска църква;
- Ботаническа градина.

📞 Информация за горепосочения имот, може да получите чрез формата на запитване или чрез директна връзка с нас на посочения телефон.
Преглеждания: 79
Другите търсят също
Обяви на потребителя РЕВОЛЮШЪН ЕСТЕЙТ Виж всички 219 обяви
Препоръчани за теб
Цена:
280 000 € 547 632,40 лв
Не се начислява ДДС