Продава 2-СТАЕН, гр. София, Горубляне → Обява 52961416

Продава 2-СТАЕН, гр. София, Горубляне
гр. София, Горубляне Наблюдавай

Публикувана/обновена на 03 януари в 11:02 ч.


Тип апартамент
2-стаен
Квадратура
96 кв. м.
Цена на кв.м.
1505 €/кв. м.
Вид строителство
Тухла
Eтаж
1
Година
2026
ДНЕВНА НАД 30 КВ.М! СПАЛНЯ НАД 20 КВ.М. ГЛЕДКА САМО ЗЕЛЕНИНА!

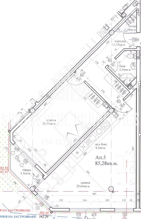
SUCCESSFUL PROPERTIES представя двустаен апартамент за продажба в ж.к Горубляне, в новострояща се сграда, с вдигнат груб строеж, направена зидария и започната фасада. Имотът ще бъде въведен в експлоатация през 2026г, като строителството върви без забавяне. Имотът гледа на югоизток, като пред него е само зеленина, помещенията са просторни и светли. Към апартамента се продава и подземно паркомясто . Обща площ на апартамента: 96. 20 кв.м, застроена площ: 85. 28 кв.м.

Разположен на първи висок етаж, състоящ се от две голяма дневна, голяма спалня, коридор с място за гардероб и склад, баня с тоалетна и тераса с гледка.

Намира се до блок 42 в ж.к Горубляне, на 3-4 мин от спирка на автобус 4, на около 5-6 мин пеша от Кауфланд Горубляне, с бърз достъп до ул. ''Самоковско шосе'' и бул. ''Цариградско шосе''

Продажна цена апартамент 144 500 евро; работим с колеги всикчи оферти!

Съдействие при покупка с кредит! За огледи и допълнителни въпроси Христо Иванов на телефон: 0879890105 или имейл:[email protected]
Преглеждания: 16
Другите търсят също
Препоръчани за теб
Цена:
144 500 € 282 617,44 лв
Не се начислява ДДС