Продава 3-СТАЕН, гр. София, Бояна → Обява 53002129

Продава 3-СТАЕН, гр. София, Бояна
гр. София, Бояна Наблюдавай

Публикувана/обновена вчера в 08:21 ч.


Тип апартамент
3-стаен
Квадратура
117 кв. м.
Цена на кв.м.
2691 €/кв. м.
Вид строителство
Тухла
Eтаж
3
Година
2025
🏡 FOHAR Модерен живот в полите на Витоша!

📍 Локация: FOHAR е съвременен жилищен комплекс, разположен на ул. Кумата 77 основната връзка между кв. Бояна и кв. Драгалевци.
Мястото съчетава спокойствието и чистия въздух на планината с удобството на бързия достъп до центъра на София.
Комплексът предлага богато озеленени пространства, детски площадки, зони за отдих, фитнес, ресторант, контролиран достъп и 24-часова сигурност всичко необходимо за комфортен и сигурен живот.

✔️​ Имотът е собственост на юридическо лице, продава се директно от собственик, без комисионна.

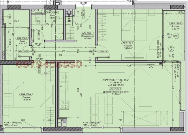
🏘️ Описание на имота: Продава се тристаен апартамент с обща площ 116,63 кв.м
Застроена площ: 93,51 кв.м
Статут: Апартамент
Етаж: 3
Изложение: запад/север
Сграда: Въведена в експлоатация, с издаден Акт 16

📐 Разпределение: Жилището се състои от преддверие, две бани с тоалетни, дневна с кухненски бокс, две спални и тераса тип лоджия с излаз от дневнатата и една от двете спални.
Функционално и удобно разпределение, осигуряващо светлина и комфорт.

🌡️​ Отопление: Климатици / Парно на газ

🔑 Състояние: Апартаментът се издава на шпакловка и замазка, готов за персонализиране според вкуса на новия собственик.

📱 Умно жилище: Инсталирана е Smart Home Ready система, която позволява управление на осветлението, отоплението и сигурността директно от мобилно устройство.

💶 Цена: 377 881,20 EUR с ДДС

🚗 Паркомясто: Възможност за закупуване на паркомясто на цена от 27 000 EUR без ДДС.

📞 Контакт: Камелия Каменова
0879 45 86 90
Преглеждания: 14
Другите търсят също
Обяви на потребителя Потребител 4649968 Виж всички 4 обяви
Препоръчани за теб
Цена:
314 900,99 € 615 892,80 лв
Цената е без ДДС