Продава 3-СТАЕН, гр. София, Овча купел 1 → Обява 53044745

Продава 3-СТАЕН, гр. София, Овча купел 1
гр. София, Овча купел 1 Наблюдавай

Публикувана/обновена вчера в 16:48 ч.


Тип апартамент
3-стаен
Квадратура
108 кв. м.
Цена на кв.м.
2361 €/кв. м.
Вид строителство
Тухла
Eтаж
3
Година
2026
*ЕКСКЛУЗИВЕН ИМОТ БЕЗ КОМИСИОННА ОТ КУПУВАЧА*

Serenity Real Estate Agency с най-голямо удоволствие Ви предлага просторен тристаен апартамент в Овча Купел, до бул Монтевидео, на 5-10 мин от метростанция Мизия и НБУ, в чисто нова, висококачествена сграда, която се очаква да влезе в експлоатация през март 2026г.

Етап на завършеност при сключване на сделка преди март 2026г.: Акт 15, на шпакловка и замазка, което ви дава възможност да се възползвате от по-ниска цена, тъй като текущата обявената цена ще бъде завишена след това.

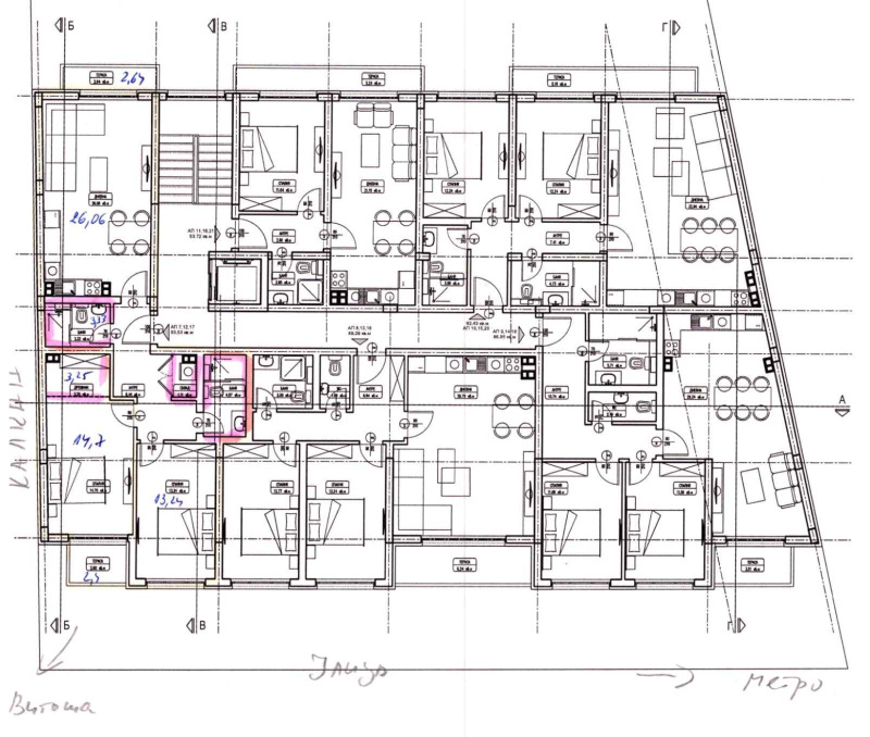
Чиста площ: 93.74 кв.м; обща площ на апартамента: 108.3 кв.м, с изключително висок коефициент на използваемост: 86% +

Към апартамента се продава и гараж от 22 кв.м на цена от 35,000 евро (с ел. захранване)

Апартаментът е вътрешен, с южно и северно изложение, 2 тераси, 2 спални, 2 бани + перално помещение, и хол с кухненски бокс.

- хол: 26.06 кв.м
- тераса към хола: 2.64 кв.м
- спалня 1: 14.7 кв.м + дрешник: 3.25 кв.м (общо: 17.95 кв.м)
- спалня 2: 13.24 кв.м
- обща тераса към двете спални: 2.5 кв.м
- перално помещение: 3 кв.м
- баня 1: 3.33 кв.м
- баня 2: 4.07 кв.м

Етаж: 2-ри след партерен (3-ти) от 5 (общо 6), по 5 апартамента на етаж.

Отоплението е на ток, с прокарани кабели за климатици, без ТЕЦ и газ.

За технически въпроси относно изработката и материалите на сградата, както и каквато и да е допълнителна информация и огледи, моля свържете с телефон: 0888666088

Благодаря и до скоро!
Преглеждания: 13
Другите търсят също
Препоръчани за теб
Цена:
255 000 € 498 736,65 лв
Не се начислява ДДС