Продава 3-СТАЕН, гр. София, Горубляне → Обява 53071127

Продава 3-СТАЕН, гр. София, Горубляне
гр. София, Горубляне Наблюдавай

Публикувана/обновена днес в 12:05 ч.


Тип апартамент
3-стаен
Квадратура
158 кв. м.
Цена на кв.м.
1190 €/кв. м.
Вид строителство
Тухла
Година
2027
ДИРЕКТНО ОТ ИНВЕСТИТОРА, БЕЗ КОМИСИОННА ОТ КУПУВАЧА!

Очаквано въвеждане в експлоатация април 2027 г.

Предлагаме 3-стаен апартамент в жилищен комплекс, кв. Горубляне, в близост до Околовръстен път и Ринг Мол, на тихо и комуникативно място с прекрасна гледка към Витоша.

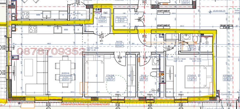
АПАРТАМЕНТ 2:
1-ви жилищен етаж, с гледка към Витоша.
ЗП: 81.84 м², обща площ: 158.56 м² от които 62.03 м² външен двор

Разпределение:
- входно антре (7.51 м²)
- дневна с кухненски бокс и трапезария (26.08 м²)
- спалня 1 (15.11 м²)
- спалня 2 с дрешник (16.29 м²)
- баня с тоалетна 1 (12.05 м²)
- баня с тоалетна 2 (11.46 м²)
- двор (62.03 м²)
- склад (2.06м²)

Опция за закупуване на подземно паркомясто с топла връзка - 25 000 евро, външно парко място 17 000 евро.

СРОКОВЕ:
Акт 14 - януари 2026 г.
Акт 15 декември 2026 г.
Акт 16 март 2027 г.
Преглеждания: 28
Другите търсят също
Препоръчани за теб
Цена:
188 000 € 367 696,04 лв
Цената е с включен ДДС