ОСТАВАТ
00часа
00мин.
00сек.
до големите отстъпки на
Ден за разпродажби

Продава 3-СТАЕН, гр. София, Драгалевци → Обява 53112828

Продава 3-СТАЕН, гр. София, Драгалевци, снимка 1 - Апартаменти - 53112828 Продава 3-СТАЕН, гр. София, Драгалевци, снимка 2 - Апартаменти - 53112828 Продава 3-СТАЕН, гр. София, Драгалевци, снимка 3 - Апартаменти - 53112828 Продава 3-СТАЕН, гр. София, Драгалевци, снимка 4 - Апартаменти - 53112828 Продава 3-СТАЕН, гр. София, Драгалевци, снимка 5 - Апартаменти - 53112828 1/5
Продава 3-СТАЕН, гр. София, Драгалевци
гр. София, Драгалевци Наблюдавай

Публикувана/обновена на 15 януари в 18:05 ч.


Тип апартамент
3-стаен
Квадратура
127 кв. м.
Цена на кв.м.
2303 €/кв. м.
Вид строителство
Тухла
Eтаж
1
Година
2025
Референтен номер: SOF-130048

Представяме просторен тристаен апартамент за продажба, в бутикова новострояща се сграда в кв. 'Драгалевци', р-н Киноцентър I-ва част.

Локацията на имота е удобна, близо до центъра на квартала, до множество ресторанти и магазини, спирка на градски транспорт на 30 метра, която е с връзка до метростанция 'Витоша'.

Срокове:
Акт 14 се очаква в края на 2025-та година;

 Акт 15 се очаква в средата на 2026-та година;

 Акт 16 - до 6 месеца след Акт 15.

Имотът е с изложение на север/североизток, намира се на 1-ви етаж и се продава в степен на завършеност по БДС (на шпакловка и замазка).

Жилището се продава с допълнително закупуване на гараж в сутерена на сградата, има възможност и за закупуване на наземно паркомясто.

Параметри:

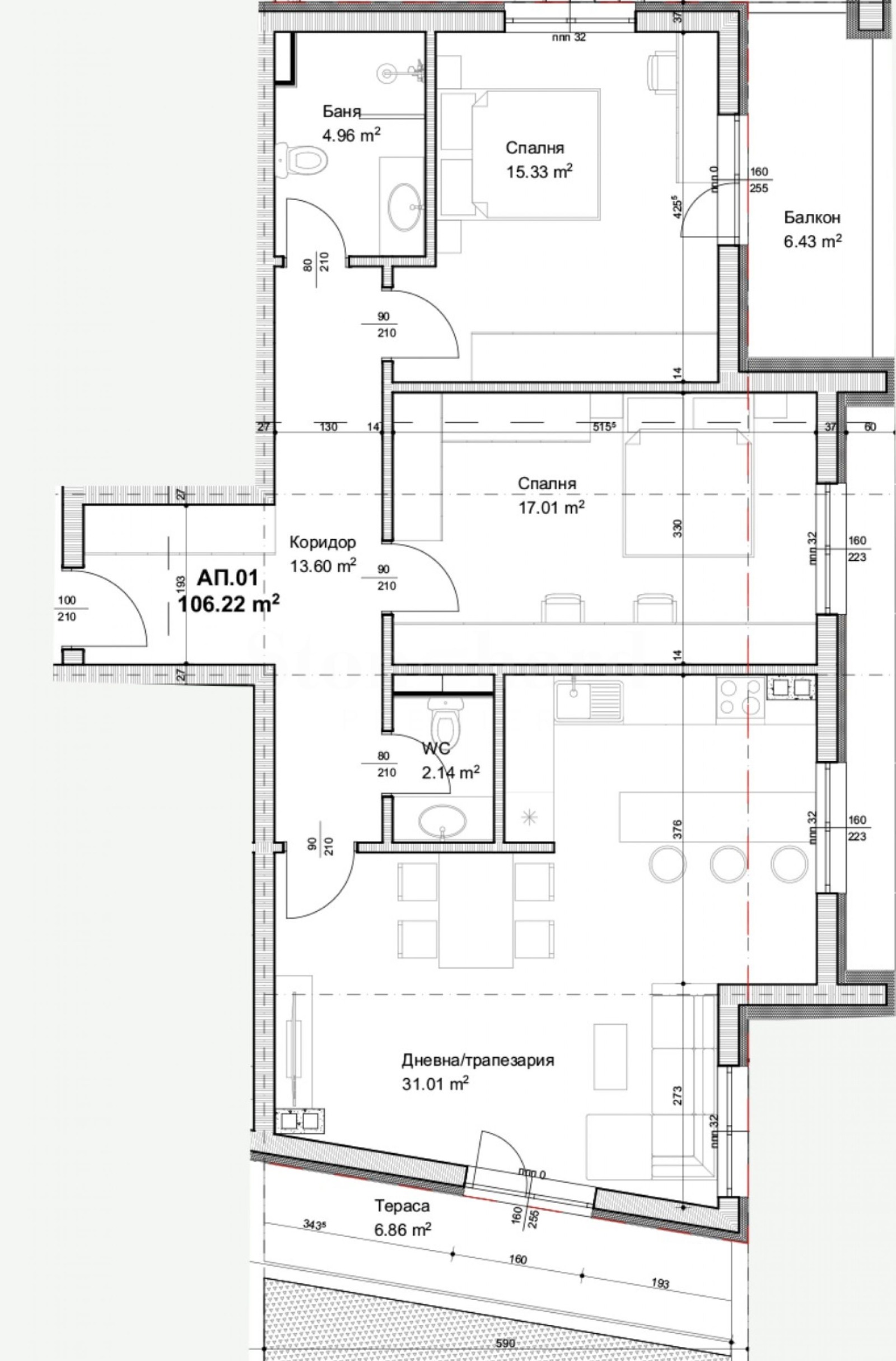
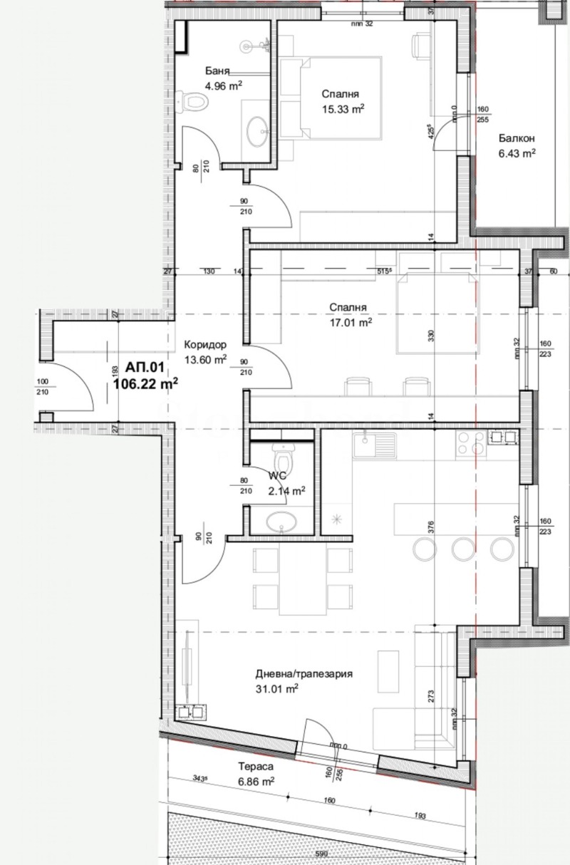
 Обща площ: 127.16 кв.м.

 Нетна площ: 106.22 кв.м.

 Общи части: 20.94 кв.м (16,66 кв.м + мазе 4,28 кв.м).

Разпределение:
Коридор: 13.60 кв.м;
Дневна: 31.01 кв.м;
Тераса към дневната: 6.86 кв.м;
Спалня 1: 17.01 кв.м;
Спалня 2: 15.33 кв.м;
Балкон към спалня 2: 6.43 кв.м;
Баня: 4.96 кв.м;
Тоалетна: 2.14 кв.м.

За сградата

Сградата е проектирана с идеята за създаване на уют и пространство в една природосъобразна среда. Намира се в полите на Витоша, в район с ниско застрояване, чист въздух и красиви панорамни гледки към Витоша и София.

Състои се от три жилищни етажа и един подземен етаж за автомобилни гаражи и мазета. Общата разгъната застроена площ на сградата е 1179,88 кв.м, с разпределени 7 броя апартаменти с прилежащи към тях 7 подземни гаража и обособени 5 броя открити паркоместа. Към сградата има общо дворно пространство с алейна настилка с обособена зона за отдих, покрита конструкция с декинг настилка. Озеленяването е ...

Цената на имота е 292 468 евро / 572 017.69 лв. без ДДС или 350 961 евро / 686 421.23 лв. с ДДС. Данъчен кредит може да се ползва при определени условия.

За повече информация свържете се с нас и цитирайте референтния номер на имота. Моля, кажете, че сте видeли обявата в този сайт.
Референтен номер: SOF-130048
Тел: +359 889 007 010
Моб: +359 877 777 888 (WhatsApp, Viber, SMS)
Отговорен брокер:Стоунхард ПРЕМИЪР
Преглеждания: 63
Другите търсят също
Препоръчани за теб
Цена:
292 467,99 € 572 017,67 лв
Цената е без ДДС