Продава 2-СТАЕН, гр. София, Манастирски ливади → Обява 53187392

Продава 2-СТАЕН, гр. София, Манастирски ливади
гр. София, Манастирски ливади Наблюдавай

Публикувана/обновена днес в 13:01 ч.


Тип апартамент
2-стаен
Квадратура
63 кв. м.
Цена на кв.м.
2476 €/кв. м.
Вид строителство
Тухла
Eтаж
2
Година
2026
ARCO REAL ESTATE предлага южен двустаен апартамент, в кв. Манастирски ливади изток.
Имотът се намира в модерна сграда, на ул.Васил Стефанов, в близост до ул. 'Тодор Джебаров'.
В момента сградата е след 'АКТ14', като се поставят дограми и комуникации.
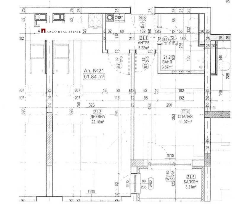
Жилището включва дневна с кухненски бокс и трапезария, самостоятелна спалня, тераса с достъп от двете стаи, баня с тоалетна.
Квадратурата на апартамента с общи части е 63.15 кв.м., а чистата площ е 51.84 кв.м.
Намира се на среден етаж - 2 от 4, с южно изложение, без преход.
Отоплението е на ток.
Към апартамента може да се закупи гараж с площ 25.17 кв.м., към който има и мазе с площ още 2.08 кв.м., на цена от 45000 евро.
Района е с бърз достъп до бул. Околовръстен път и ул. Тодор Каблешков , което улеснява придвижване, както до съседните квартали, така и до централните части на столицата.
В близост са Южния парк и мол Парадайс, които са на кратко разстояние и предоставят възможности за разходка и забавление.
Около блока има магазини, заведения, хипермаркет, частна ясла, дентална клиника, естетичен център, салони за красота, бизнес сгради и офиси и др.
Агенцията работи по стандарт за качество БДС EN 15733.
Съдействие за ипотечно кредитиране и пазарна оценка на имота.
За допълнителна информация и огледи - Борис Иванов:0895664569.
Код на оферта: 105988
Преглеждания: 4
Другите търсят също
Препоръчани за теб
Цена:
156 000 € 305 109,48 лв
Цената е с включен ДДС