Продава 3-СТАЕН, гр. Пловдив, Христо Смирненски → Обява 53190556

Продава 3-СТАЕН, гр. Пловдив, Христо Смирненски, снимка 1 - Апартаменти - 53190556 1/1
Продава 3-СТАЕН, гр. Пловдив, Христо Смирненски
гр. Пловдив, Христо Смирненски Наблюдавай

Публикувана/обновена на 26 януари в 09:15 ч.


Тип апартамент
3-стаен
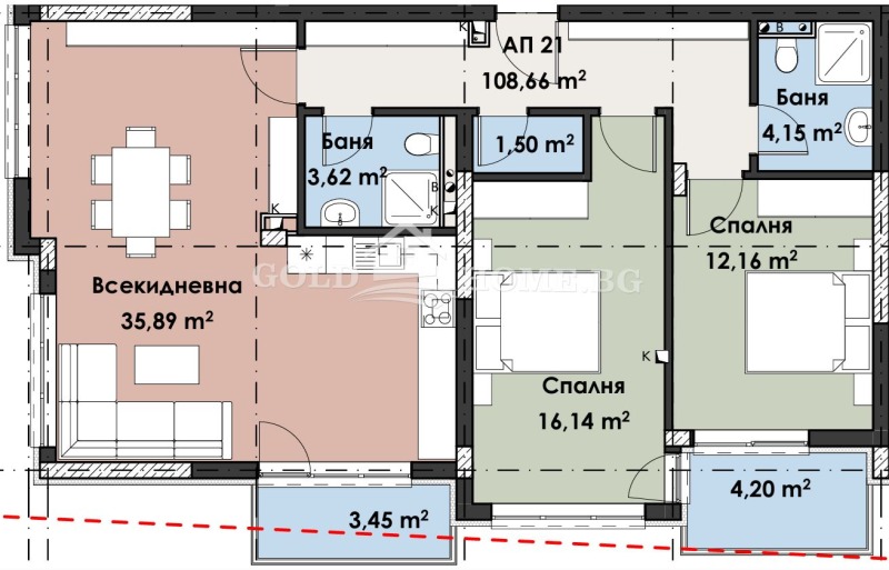
Квадратура
123 кв. м.
Цена на кв.м.
1193 €/кв. м.
Вид строителство
Тухла
Eтаж
5
Година
2027
💎НАЙ - НОВОТО БИЖУ в град Пловдив - БЕЗ КОМИСИОН ! 💎ОФЕРТА : 16126
- Представяме Ви НОВ проект от две модерна жилищни сгради, които съчетават иновации, надеждност и елегантен стил. Тук ще откриете не просто апартамент, а дом, създаден с мисъл за комфорт и качество на живот.

🎯Схема на плащане :
30% при подписване на предварителен договор , остатъка от 70% ще се заплатят когато сградата е готова с АКТ 15 .

➡️ Разпределение и етаж :
◼ Жилището в обява е разположено на пети - предпоследен етаж на сградата .
- Състои се от входно антре , всекиндневна с трапезария и кухненски бокс /36кв.м./ , две спални, две бани с тоалетни , килер и две тераси.
- Изложение : Юг-Запад

🚗Паркиране :
◼ Има възможност за покупка на
- Подземни паркоместа
- Надземни паркоместа
- Партерни гаражи.

✔️Степен на завършеност :
- Жилищата ще бъдат издадени по следния начин
-Стени и тавани гипсова мазилка; Под циментова замазка;
-Висок клас дограма с троен стъклопакет
-Тераса гранитогрес и стъклени парапети
-Входна врата блиндирана, MDF;
-Изградени Електро инсталация с монтирани ключове и контакти и ВиК инсталация до тапа
-Подготовка за видеодомофон, кабелна телевизия и интернет
-Фасада топлоизолация; цветна мазилка; облицовка от няколко вида камък.
-Общи части на сградата напълно завършени общи части с гранитогрес, осветление и контрол на достъпа.
📅Срокове на изпълнение :
Пусков срок - края на 2027 година.

✔️За строителството :
◼ Пример за модерно и иновативно строителство в България.
-В процеса на изграждане ще се използват най-новите технологии и системи, сред които PERI DUO и PERI SKYDECK, които гарантират бързина, сигурност и прецизност в изпълнението.
-В материалите са заложени водещи компании като Wienerberger и Baumit, както и материали от най-висок клас, които допринасят за дълготрайността и високото качество на сградата.

📍Локация :
Сградата е ситуирана в един от най-бързоразвиващите се райони на града кв. Кършияка, отличаващ се с удобни транспортни връзки, модерна инфраструктура и динамична среда.

🔑 Изберете дом, който съчетава престиж, стил и сигурност създаден да бъде Вашето ново любимо място в Пловдив!

➡️'ГОЛД ИМОТИ' Ви предлага, да се възползвате от професионално кредитно посредничество чрез Credit Center при ипотека, потребителски кредит и рефинансиране!
-УСЛУГАТА Е ИЗЦЯЛО БЕЗПЛАТНА!
-ИЗГОТВЯНЕ НА НЯКОЛКО ОФЕРТИ ОТ ВОДЕЩИ БАНКИ!
-НАЙ-ИЗГОДНИ УСЛОВИЯ СПРЯМО ВАШИЯТ ПРОФИЛ!
-НЕ Е НЕОБХОДИМО ДА СЕ РАЗКАРВАТЕ ВЪВ ВСЕКИ КЛОН НА РАЗЛИЧНИ БАНКИ!
➡️ Още атрактивни и актуални оферти може да разгледате на нашият сайт : goldhome.bg
➡️ За повече информация и при интерес за оглед, моля свържете се с нас!
Преглеждания: 24
Другите търсят също
Препоръчани за теб
Цена:
146 740 € 286 998,49 лв
Цената е с включен ДДС