ОСТАВАТ
00часа
00мин.
00сек.
до големите отстъпки на
Ден за разпродажби

Продава 2-СТАЕН, гр. Пловдив, Остромила → Обява 53231862

Продава 2-СТАЕН, гр. Пловдив, Остромила
гр. Пловдив, Остромила Наблюдавай

Публикувана/обновена днес в 15:01 ч.


Тип апартамент
2-стаен
Квадратура
80 кв. м.
Цена на кв.м.
1499 €/кв. м.
Вид строителство
Тухла
Eтаж
2
Година
2026
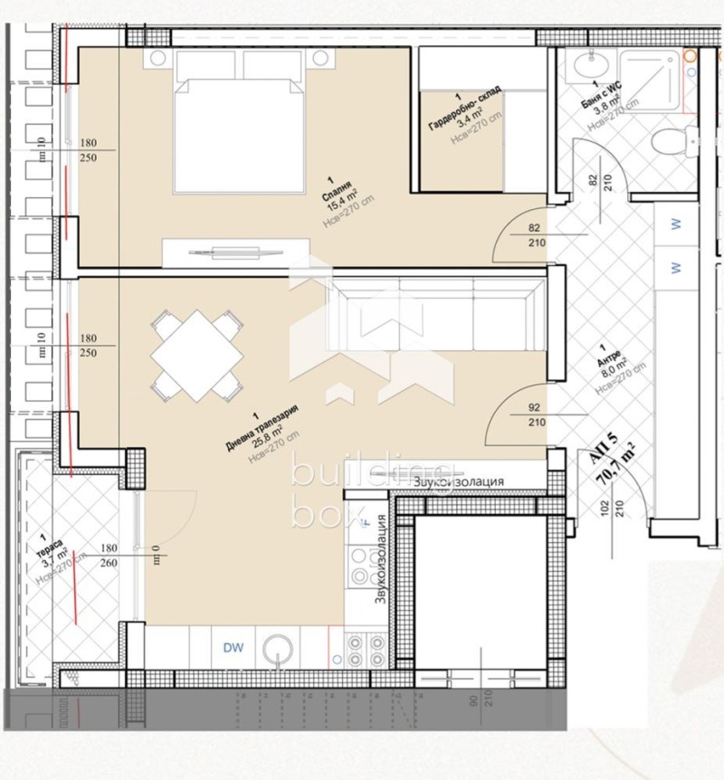
БИЛДИНГ БОКС продава апартамент с една спалня в кв. 'Остромила'.

Предимства на имота:
- ЛОКАЦИЯ: Остромила е бързоразвиващ се квартал на гр. Пловдив с преобладаващи нови сгради, построени през последните 10 години. В района е разрешено предимно ниско застрояване с висок процент озеленяване, което е причината кварталът да бъде предпочитан при избор на апартамент за живеене.
- РАЗПРЕДЕЛЕНИЕ: Всекидневна с кухненски бокс с площ от 26 кв.м, спалня с площ от 15 кв.м, баня и тоалетна, антре и тераса.
- ЕТАЖ: 2-ри етаж от общо 6.
- ИЗЛОЖЕНИЕ: ЗАПАД.
- ОТОПЛЕНИЕ: Електричество.
- СТЕПЕН НА ЗАВЪРШЕНОСТ: Сградата е със степен на завършеност АКТ 14. Въвеждане в експлоатация се очаква до края на 2026г.
- СТРОИТЕЛСТВО: Високо качество, както на материалите, така и на строителството.
- ПАРКИРАНЕ: Наличен наземен и подземен паркинг с паркоместа и гаражи, които могат да бъдат закупени допълнително.

БИЛДИНГ БОКС предоставя безплатна консултация и съдействие при финансиране на избрания от Вас имот.
Оферта 24446
Преглеждания: 1
Другите търсят също
Препоръчани за теб
Цена:
119 900 € 234 504,02 лв
Цената е с включен ДДС