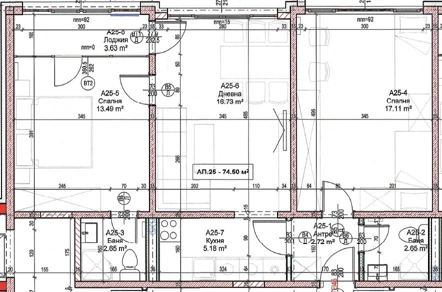
ЮНИВЪРСЪЛ
В Bazar.BG от 17 януари 2017г.
Последно активен
27 януари в 13:37 ч.
Още оферти на https://universalbg.imot.bg
