ОСТАВАТ
00часа
00мин.
00сек.
до големите отстъпки на
Ден за разпродажби

Продава 4-СТАЕН, гр. София, Надежда 1 → Обява 53256099

Продава 4-СТАЕН, гр. София, Надежда 1, снимка 1 - Апартаменти - 53256099 Продава 4-СТАЕН, гр. София, Надежда 1, снимка 2 - Апартаменти - 53256099 Продава 4-СТАЕН, гр. София, Надежда 1, снимка 3 - Апартаменти - 53256099 1/3
Продава 4-СТАЕН, гр. София, Надежда 1
гр. София, Надежда 1 Наблюдавай

Публикувана/обновена днес в 16:00 ч.


Тип апартамент
4-стаен
Квадратура
158 кв. м.
Цена на кв.м.
2255 €/кв. м.
Вид строителство
Тухла
Eтаж
8
Година
2029
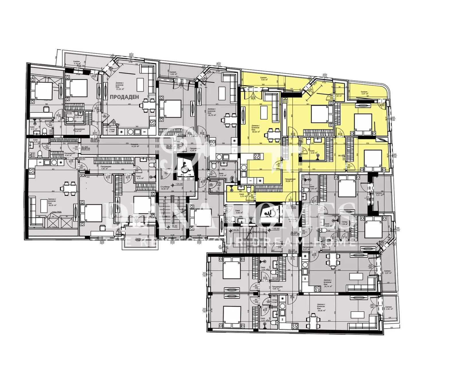
ДИАНА ХОУМС продава 4-стаен апартамент в новострояща се сграда в ж.к. Надежда 1.

🏗️ Сградата:
Сградата е на етап взето разрешение за строеж, с очакван срок за завършване 2029г.
Предлаганият апартамент е разположен на 8-и жилищен етаж (9-и надземен) с чиста площ от 138,18 кв.м. и обща площ от 158,33 кв.м. Състои се от дневна с обособен кухненски бокс, 3 спални, 2 бани с тоалетни, 2 балкона и преддверие. Ще бъде предаден на шпакловка и замазка.

Ⓜ️ Транспорт и комуникации:
Две метростанции на по 800 м от сградата. В непосредствена близост до спирка на автобуси 83 и 285.
Районът е с изградена инфраструктура. В близост има две детски градини, училища, обекти на големите търговски вериги и множество по малки обекти за стоки и услуги. ДКЦ 8 е в непосредствена близост.

❗️ Предлагаме и други апартаменти в сградата.

💶 Гъвкави схеми на плащане.

☎️ За повече информация се свържете с нас на телефон: 0893 95 10 10
Преглеждания: 224
Другите търсят също
Препоръчани за теб
Популярни търсения: едно
Цена:
356 242 € 696 748,79 лв
Цената е с включен ДДС