ОСТАВАТ
00часа
00мин.
00сек.
до големите отстъпки на
Ден за разпродажби

Продава 2-СТАЕН, гр. Пловдив, Тракия → Обява 53265331

Продава 2-СТАЕН, гр. Пловдив, Тракия, снимка 1 - Апартаменти - 53265331 Продава 2-СТАЕН, гр. Пловдив, Тракия, снимка 2 - Апартаменти - 53265331 Продава 2-СТАЕН, гр. Пловдив, Тракия, снимка 3 - Апартаменти - 53265331 Продава 2-СТАЕН, гр. Пловдив, Тракия, снимка 4 - Апартаменти - 53265331 1/4
Продава 2-СТАЕН, гр. Пловдив, Тракия
гр. Пловдив, Тракия Наблюдавай

Публикувана/обновена вчера в 10:56 ч.


Тип апартамент
2-стаен
Квадратура
62 кв. м.
Цена на кв.м.
1885 €/кв. м.
Вид строителство
Тухла
Eтаж
5
Оферта 6814
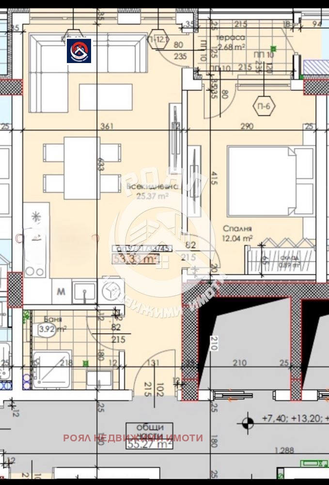
Роял имоти предлага за продажба двустаен апартамент, след акт 14 в кв.Тракия, с прилежаща изба, идеален имот както за живеене така и за инвестиция.
- Локация: Пловдив, ж.к. Тракия
- Тип имот: 2-стаен апартамент
- Общa площ: 62 кв.м
- Брой стаи: 2
- Спални: 1
- Балкони: 1
- Бани: 1
- Тоалетни: 1
- Асансьор: да
- Мазе: да
-Избата е 3.58 кв.м.
-Парко място 513 ( 26.68 м2)
- Разпределение: функционална 2-стайна схема с отделна спалня, дневна зона с място за кухненски кът, входно антре, балкон, баня и тоалетна. Подходящ за удобно ежедневно обитаване и лесно обзавеждане.
- Предимства: асансьор за безпроблемен достъп, налично мазе за допълнително съхранение, сграда с технически паспорт за спокойствие и сигурност. Имот с отличен потенциал както за лично ползване, така и за отдаване под наем.
- Подходящ за: сам човек или двойка, както и за купувачи, търсещи доходност от инвестиция.
Квартал Тракия е модерен и добре уреден район с развита инфраструктура, зелени пространства и удобни транспортни връзки към всички части на града.
В близост има търговски центрове, училища и спортни съоръжения, както и бърз достъп до центъра на Пловдив и до АМ Тракия .
За повече информация и организиране на оглед свържете се с нас.
Преглеждания: 1
Другите търсят също
Препоръчани за теб
Цена:
116 900 € 228 636,53 лв
Цената е с включен ДДС