ОСТАВАТ
00часа
00мин.
00сек.
До края на
Ден за разпродажби

Продава 4-СТАЕН, гр. София, Люлин 8 → Обява 53286366

Продава 4-СТАЕН, гр. София, Люлин 8, снимка 1 - Апартаменти - 53286366 Продава 4-СТАЕН, гр. София, Люлин 8, снимка 2 - Апартаменти - 53286366 Продава 4-СТАЕН, гр. София, Люлин 8, снимка 3 - Апартаменти - 53286366 Продава 4-СТАЕН, гр. София, Люлин 8, снимка 4 - Апартаменти - 53286366 1/4
Продава 4-СТАЕН, гр. София, Люлин 8
гр. София, Люлин 8 Наблюдавай

Публикувана/обновена днес в 17:30 ч.


Тип апартамент
4-стаен
Квадратура
128 кв. м.
Цена на кв.м.
2047 €/кв. м.
Вид строителство
Тухла
Eтаж
5
ЦЕНИ НА ИНВЕСТИТОР!!!
ЕРА Фаворит продава четиристаен апартамент в Люлин 8 в новострояща се сграда от доказан инвеститор.
Характеристики на жилището:
Етажност - пети жилищен етаж.
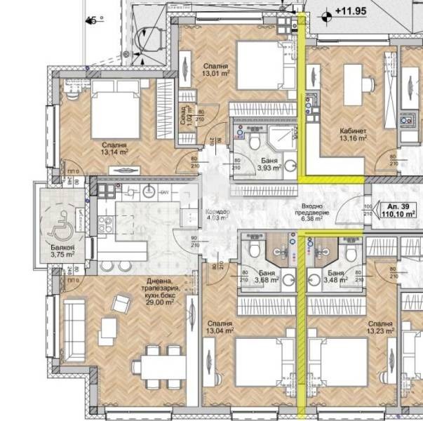
Разпределение - апартаментът разполага с дневна с трапезария и кухненски бокс, две бани с тоалетна, три спални, склад и покрит балкон със северозападно изложение.
Изложение - север / запад / юг
Застроена площ - 110м?
Обща площ - 127м?
Паркомясто - може да се закупи допълнително.
Характеристики на проекта:
Сградата се състои от един подземен етаж с гаражи, паркоместа, складови помещения и технически зони, осем жилищни етажи и един терасовиден последен етаж.
Начален етап на строителство. Въвеждане в експлоатация - края на 2028 година. В околността има изобилие от магазини, училища, аптеки, парк. Сградата се изгражда на стратегическа локация в непосредствена близост до водещи пътни артерии, включително метростанция, предоставяйки възможност за бърза връзка с различните части на града. Локацията прави този апартамент еднакво подходящ както за лично ползване, така и като инвестиционна възможност.
Жилищен капацитет:
В комплекса са предвидени общо 59 апартамента - двустайни, тристайни и ателиета, проектирани с внимание към функционалността и уюта на всеки един от тях.
Агенция ЕРА Фаворит е член на НСНИ и администратор на лични данни.
Преди огледа се провежда среща в нашия офис, за да се запознаем с изискванията Ви и за да оформим документи съгласно ЗЗД и ЗМИП.
По време на огледа се подписва Протокол за оглед.
Предлагаме Ви юридическо съдействие през целия процес на покупката.
Агенцията съдейства за безплатна кредитна консултация от CREDITERA - лицензиран финансов брокер към БНБ!
Всеки ERA офис е с независимо управление и собственост!

Оферта 7200394
Преглеждания: 5
Другите търсят също
Препоръчани за теб
Цена:
262 031 € 512 488,09 лв
Цената е с включен ДДС