Продава ПАРЦЕЛ, с. Руен, област Пловдив → Обява 53304096

Продава ПАРЦЕЛ, с. Руен, област Пловдив, снимка 1 - Парцели - 53304096 Продава ПАРЦЕЛ, с. Руен, област Пловдив, снимка 2 - Парцели - 53304096 Продава ПАРЦЕЛ, с. Руен, област Пловдив, снимка 3 - Парцели - 53304096 1/3
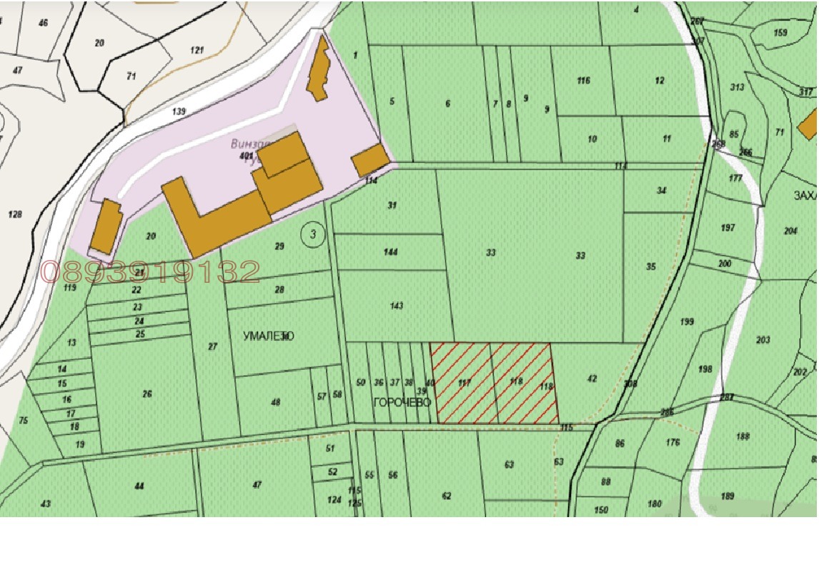
Продава ПАРЦЕЛ, с. Руен, област Пловдив
с. Руен, Пловдив Наблюдавай

Публикувана/обновена днес в 15:03 ч.


Квадратура
1147 кв. м.
Цена на кв.м.
22 € кв. м.
Здравейте.
Продавам земеделска земя с ид.63238.3.144
Цена 25000 euro
Намира се в местност Умалето.

Само частни лица.
Преглеждания: 15
Другите търсят също
Препоръчани за теб
Цена:
25 000 € 48 895,75 лв
Не се начислява ДДС