ОСТАВАТ
00часа
00мин.
00сек.
до големите отстъпки на
Ден за разпродажби

Продава 2-СТАЕН, гр. Пловдив, Кършияка → Обява 53313909

Продава 2-СТАЕН, гр. Пловдив, Кършияка, снимка 1 - Апартаменти - 53313909 Продава 2-СТАЕН, гр. Пловдив, Кършияка, снимка 2 - Апартаменти - 53313909 1/2
Продава 2-СТАЕН, гр. Пловдив, Кършияка
гр. Пловдив, Кършияка Наблюдавай

Публикувана/обновена на 11 февруари в 10:31 ч.


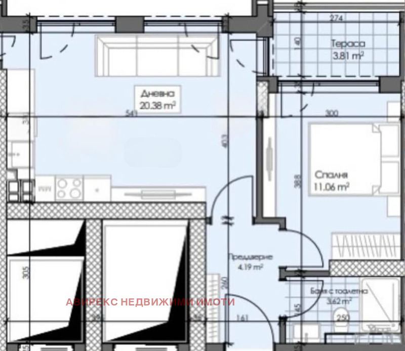
Тип апартамент
2-стаен
Квадратура
67 кв. м.
Цена на кв.м.
904 €/кв. м.
Вид строителство
Тухла
Eтаж
5
Година
2027
💡 Гъвкави схеми на плащане! 💡
🚀 Най-ниската цена за района!
🌟 Двустаен апартамент в новострояща се сграда в район Кършияка! 🌟
📌 Без комисионна от купувач!

🛏️ Етаж: 5
📏 Квадратура: 67 кв.м.
💰 Цена: 60 590 евро
🏢 Нова сграда с доказан инвеститор и много завършени проекти!
📍 Район: Кършияка, едно от най-желаните места за живеене!

Прекрасен апартамент, който ще ви осигури комфорт и удобство в динамичен и развиващ се район. Не изпускайте тази изгодна оферта! ✨

Свържете се с нас за повече информация и оглед! 📞
Преглеждания: 36
Другите търсят също
Препоръчани за теб
Цена:
60 590 € 118 503,74 лв
Не се начислява ДДС