ОСТАВАТ
00часа
00мин.
00сек.
до големите отстъпки на
Ден за разпродажби

Продава 3-СТАЕН, гр. Айтос, област Бургас → Обява 53317871

Продава 3-СТАЕН, гр. Айтос, област Бургас, снимка 1 - Апартаменти - 53317871 1/1
Продава 3-СТАЕН, гр. Айтос, област Бургас
гр. Айтос, Бургас Наблюдавай

Публикувана/обновена на 09 февруари в 17:58 ч.


Тип апартамент
3-стаен
Квадратура
83 кв. м.
Цена на кв.м.
800 €/кв. м.
Вид строителство
Тухла
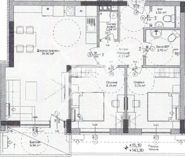
Компания Х представя на Вашето внимание тристаен апартамент в Айтос.

МЕСТОПОЛОЖЕНИЕ: Намира се в спокойна част на района, на минути пеша от центъра на града, както и в близост до хранителен магазин и спирка на градски транспорт.

СТРОИТЕЛСТВО: Апартаментът е разположен на шести етаж, тухла.

РАЗПРЕДЕЛЕНИЕ: Жилището разполага с площ 83кв.м. с общите части, състои се от хол с кухненски бокс, две спални, баня с тоалетна, склад и тераса.

СЪСТОЯНИЕ: Апартаментът се предлага на степен до ключ, което Ви дава възможността да го устроите по Ваш вкус и да го превърнете в мечтания дом!

Заповядайте да Ви го покажем. Използвайки нашите услуги Вие ще превърнете закупуването на новия си дом в едно приятно изживяване, ще получите персонален консултант, съдействие при кандидатстване за кредит от всички банки в България, интериорни дизайнери и екип, който да се погрижи за нужните документи по Вашата сделка. На Ваше разположение сме всеки ден, от понеделник до неделя от 09:00 до 20:00ч. Възползвайте се от безплатна консултация в наш офис, където ще ви спестим време и ще ви запознаем с всички актуални имоти в България, отговарящи на Вашето търсене. Свържете се с нас на 0887779990 или на 0882009283 и цитирайте кода към имота: 65864
Преглеждания: 50
Цена:
66 400 € 129 867,11 лв
Цената е с включен ДДС